Prodej bytu, 3+kk, 102 m²
Prodej bytové jednotky 3+kk, 102m2, sklep 4m2, prostorná terasa 153m2, parkovací stání, ulice Stromo
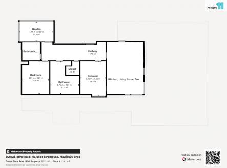
Nabízíme ke koupi výjimečnou a nadstandardně prostornou bytovou jednotku o dispozici 3+kk a celkové ploše 102 m². Bytová jednotka se nachází v žádané lokalitě v ulici Stromovka v moderním areálu vybudovaném v roce 2010 jako součást luxusního projektu Villa Park Čechovka, který nabízí klid, soukromí a bezpečí. Hlavní přednosti bytu: Dispozice 3+kk – 102 m²: světlý obývací pokoj s kuchyňským koutem, dvě ložnice, koupelna a samostatné WC. Praktické, moderní a funkční řešení prostoru. Terasa 153 m²: skutečně výjimečný exteriér, který v této lokalitě nemá konkurenci. Ideální pro relax, dětské hry, letní posezení, vířivku nebo zahradní kuchyň. Dvě parkovací stání v nabídkové ceně: v této části města velký benefit a nabízíme možnost dokoupení třetího stání za výhodných podmínek. Sklep 4 m²: perfektní úložný prostor pro sezónní věci, kola či sportovní vybavení. Pro vážné zájemce máme připravený půdorys bytové jednotky a také 3Dvirtuální prohlídku, kterou vám na vyžádání rádi zašleme a kde si můžete projít bytem před případnou osobní prohlídkou. Lokalita Stromovka – jedno z nejlepších míst k bydlení v Brodě. Rezidenční čtvrť Stromovka nabízí spojení městského komfortu a klidného života v zeleni v blízkosti zeleně. V docházkové vzdálenosti je veškerá občanská vybavenost školy, školky, obchody, lékaři, sportoviště i centrum města. Okolí je tvořeno travnatými plochami, stezkami pro procházky i cykloturistiku a přirozeně navazuje na přírodu Vysočiny. Tato oblast patří dlouhodobě mezi nejrychleji prodávané lokality v Havlíčkově Brodě. A Proč právě tento byt? Ojedinělá velikost terasy 153 m², dvě parkovací místa s možností třetího, nadstandardní podlahová plocha 102 m², soukromí, bezpečí a klid v areálu bytových domů, jediný byt na patře, výtahem skoro až do bytu, venkovní elektrické žaluzie, vnitřní rolety, elektrická markýza na terase, kuchyňská linka na míru (spotřebiče Gorenje a Miele), americká lednička, alarm Jablotron, ovládací hlavice na topení. Byt je ideální pro rodinu, investici nebo moderní bydlení s velkým venkovním prostorem. Podobné byty v této lokalitě (obvykle 3+kk 65–91 m²) se prodávají velmi rychle. Tato nemovitost však nabízí výrazně vyšší standard a přidanou hodnotu, která se na trhu objevuje jen výjimečně. Rádi vám byt osobně představíme, projdeme dispozice a zašleme vám půdorys a 3Dvirtuální prohlídku. Tato příležitost nebude dlouho aktuální, doporučujeme rychlé jednání. Ev. číslo: 27904.


