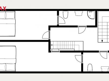
Prodej bytu, 4+kk, 113 m²
Prodej mezonetového bytu 4kk s top výhledem
Nabízíme k prodeji prostorný třípodlažní byt 4 + kk s velkorysou užitnou plochou 113m² v centru obce Harrachov, okrese Jablonec nad Nisou. Tento velmi dobře udržovaný byt se nachází v cihlovém domě spolu s dalšími 2 bytovými jednotkami a disponuje, jak společnou zahradou, tak terasou s nádherným výhledem na Čertovu horu s její dominantou mamutím můstkem a sjezdovkami, což umocňuje možnost vychutnat si klid a pohodu v srdci Krkonoš. Kromě čtyř parkovacích míst nabízí tato nemovitost také výhodnou polohu s dobrou dostupností veřejné dopravy (vlak, autobus). Občanská vybavenost je zde skvělá, v okolí se nachází několik obchodů, restaurací i pošta. Nemovitost je vybavena veškerým potřebným vybavením. Co se týče technické stránky, byt je napojen na veškeré sítě, včetně kanalizace, vodovodu, elektřiny. Díky zateplení domu je tento byt nejen úsporný, ale také umožňuje komfortní dálkové ovládání vytápění a ohřevu teplé vody přes mobilní telefon, což zajišťuje moderní a efektivní správu nákladů na bydlení, které činí jen cca 2 500 Kč měsíčně. Tato nemovitost nabízí podmínky nejen pro vlastní klidné bydlení v blízkosti přírody, ale také díky lukrativní poloze i vynikající možnost využití jako rekreační pronájem pro milovníky Krkonoš, sportu a turistiky. Pro financování nemovitosti Vám nabízíme služby spolupracujícího profesionálního finančního poradce. V případě zájmu o prohlídku nás neváhejte kontaktovat. Těšíme se na viděnou pod Čertovou horou.


