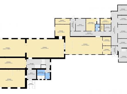
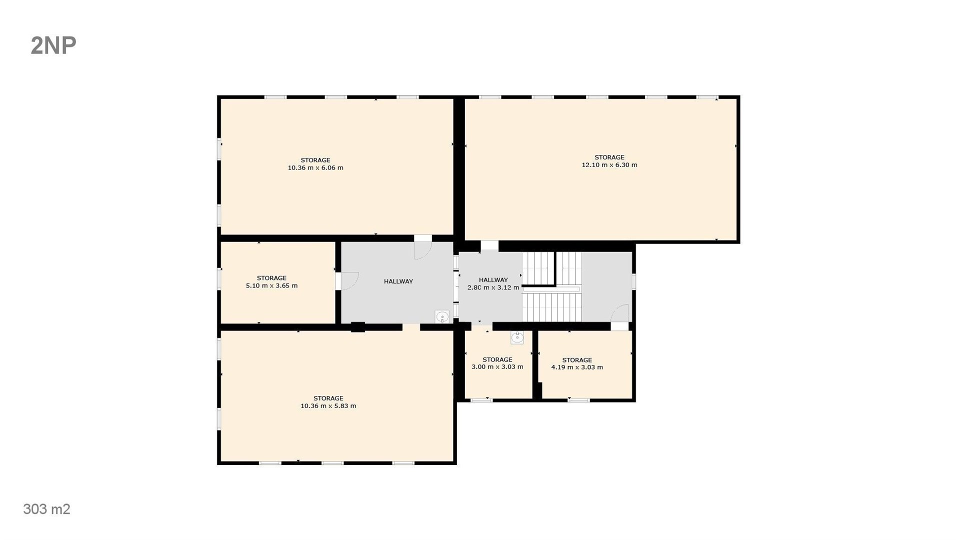
Prodej - nájemní dům, 1 380 m²
Investiční komerční objekt v centru Hanušovic
Nabízíme k prodeji budovu v samém centru Hanušovic, která v minulosti sloužila jako školní družina a jídelna. Dům, jehož prostory mají svoji historii i zvláštní atmosféru, nyní čeká na nový projekt a majitele s vizí. Díky umístění v katastru jako bytový dům nabízí objekt mimořádně širokou škálu využití – od polyfunkčního domu přes sociální služby až po moderní gastro či komunitní centrum. Budova stojí v klidném centru obce, v docházkové vzdálenosti od veškerých služeb i vlakového nádraží, které představuje dopravní uzel směrem na Olomouc, Brno a Jeseník. Hanušovice navíc procházejí zásadní proměnou: rozvoj infrastruktury, modernizace veřejných prostranství a vznikající projekt HBlok s cca 110 bytovými jednotkami zvyšují hodnotu nemovitostí v centru a vytvářejí nové příležitosti pro podnikání. Možnosti využití objektu: Domov pro seniory či chráněné bydlení – dispozice, přístupnost a poloha v centru vytvářejí vhodné podmínky pro sociální služby, pro které je v regionu dlouhodobý nedostatek kapacit. Polyfunkční dům – možnost kombinace startovacích bytů, kanceláří, ordinací či dalších služeb, které bude nově přicházející obyvatelstvo potřebovat. Gastro a komunitní centrum – Hanušovicím chybí moderní restaurace, kavárna či prostor pro komunitní život. Budova díky své historii a umístění nabízí ideální základ pro takový koncept. Technický stav: V roce 2011 proběhla kompletní rekonstrukce střechy a krovů (hliníková krytina, ocelové výztuže, nová střešní a arkýřová okna). V roce 2006 byla modernizována plynová kotelna. Ostatní části objektu jsou v původním stavu, připravené pro rekonstrukci dle záměru investora. Povodňová rizika: Nemovitost se nachází mimo aktivní povodňovou oblast, v zóně 2 – nízké riziko podle ČAP. Tato budova není jen nemovitostí, ale příležitostí. Může znovu ožít jako místo, kde se lidé budou cítit dobře – ať už půjde o domov, službu pro komunitu, nebo podnikání. Je ideální volbou pro investory, developery i poskytovatele sociálních služeb, kteří hledají projekt s reálným potenciálem růstu.


