Prodej bytu, 3+kk, 83 m²
Prodej byty 3+kk, 81,4 m2 - Hamr
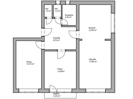
Nabízíme ke koupi prostorný a světlý byt 3+kk v malebné obci Hamr v blízkosti Chlumu u Třeboně. Pokud hledáte klidné bydlení s nádhernou přírodou na dosah ruky, je tento byt ideální volbou! Byt se nachází ve 2. patře bytového domu a je momentálně koncipován jako ložnice s obývacím pokojem a dva oddělené pokoje. Vytápění zajišťují moderní elektronické infrapanely, které jsou efektivní a úsporné. Byt bude předán částečně vybaven, což umožňuje okamžité nastěhování, popřípadě si prostor přizpůsobit dle vlastních potřeb. Celková plocha: 83,7 m2 (včetně balkónu 2,3 m2 a samostatného sklepa 8 m2), k bytu náleží půdní prostor (cca 40 m2), sdílená kolárna, soukromá zahrada (cca 280 m2) perfektní pro relaxaci, grilování nebo zahrádkaření. Poplatky do fondu oprav: 1 000 Kč/měsíc Parkování: 2+ parkovací stání Hamr je vyhledávaná lokalita díky svému klidu a blízkosti přírody. V okolí najdete krásné pískovny, ideální pro letní koupání, rybaření nebo příjemné procházky. Okolní příroda je perfektní pro milovníky cyklistiky a dalších venkovních aktivit. Neváhejte mě kontaktovat pro více informací a sjednání prohlídky!


