Prodej - dům/vila, 613 m²
Prodej vily 613 m2, pozemek 843 m2
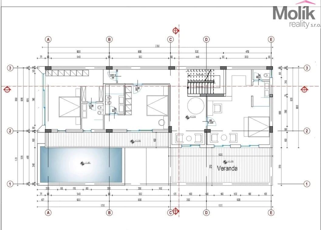
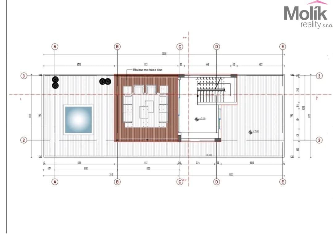
Nabízíme k prodeji luxusní vilu v oblasti Golem. Pozemek 843 m | Konstrukce 613 m | 3 patra + ikonická střešní terasa | 4 ložnice | 6 koupelen | kinosál | fitness centrum | 4 parkovací místa | bazén | pracovní studio | střešní vířivka Patro 0 Vaše osobní oáza klidu a služeb Vaše osobní kino Soukromé fitness centrum Prostor pro personál, prádelna, sklad, toalety, technické místnosti, protože každý detail je promyšlen pro vaše pohodlí. 1. patro Kde život a elegance koexistují Otevřený obývací prostor s přímým přístupem k bazénu, obklopený ze 2 stran okny s orientací na jihozápad, kde bude přirozené světlo nedílnou součástí dne Pracovní studio s přístupem do soukromé zahrady Hlavní ložnice s toaletou a osobní šatnou a přístupem k bazénu Denní toaleta pro každodenní prostory 2. patro Místo absolutního soukromí a klidu 2 ložnice, každá se šatnou, osobní toaletou a balkonem s výhledem na bazén a moře A pak Luxusní hlavní apartmá Ložnice s integrovaným obývacím prostorem, šatnou, toaletou, soukromou verandou s orientací na jih, s výhledem na bazén a moře Střešní terasa kde se sny setkávají s realitou Vlastní svět otevřený, krytý, navržený k překvapení: Nekonečná vířivka, která se ztrácí na horizontu Relaxační zóna pro večeře s přáteli pod hvězdami 180° výhled na moře až k úchvatnému místu, kde se obloha a moře splývají před vašima očima. 4 parkovací místa (2 kryté) Soukromý bazén Naprosté soukromí, absolutní luxus. Pro více informací mě neváhejte kontaktovat 7 dní v týdnu!


