Prodej - chata/rekreační objekt, 105 m²
Chalupa 105 m2, 2+1, pozemek 1313 m2
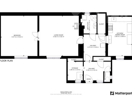
Nabízíme k prodeji krásnou chalupu v klidné lokalitě, která splňuje vše, co potřebuje moderní rodina. Díky prostorné zahradě a okolí plnému přírody zde najdete dokonalé zázemí pro děti, rodinný život i volnočasové aktivity. Hlavní přednosti: - v dosahu škola, školka, obchody i lékař - velká zahrada - ideální pro hry dětí, zahradničení i odpočinek - možnost vytvořit rodinnou chalupu či chovnou stanici pro psy, kočky nebo jiné zvířecí miláčky - klidná lokalita se soukromím a přesto skvělou dostupností všeho potřebného Chalupa má dispozici 2+1 a je připravená k okamžitému užívání, zároveň ale dává prostor pro další úpravy - zejména půda je natolik vysoká (3 m) a prostorná (23 x 5 m), že si z ní bez problémů vytvoříte další obytnou část. Stavba je částečně rekonstruována - nová voda, odpady, izolace, elektřina a omítky. Vytápění tuhými palivy - klasika, která má své kouzlo i praktičnost. Na pozemku najdete vše, co k chalupě patří: velkou vzrostlou zahradu, kde se dá relaxovat i pěstovat, stodolu, bývalé chlévy, kůlnu a sklep. Každý kousek tu má své využití - ať už chcete tvořit, skladovat, hospodařit nebo jen posedět ve stínu stromů. Lokalita: Nasavrky jsou malá obec uprostřed přírody, obklopená lesy a poli. Ideální pro ty, kdo hledají jednoduchost a klid. Přitom do Golčova Jeníkova je to jen 2 km - pěšky pohodových 20 minut, autem jste tam za 5. Ve městě je veškerá občanská vybavenost: obchod, škola, školka, lékař, pošta, restaurace i vlakové a autobusové spojení. Navíc jen cca 25 minut autem leží Kutná Hora, památka UNESCO s historickým centrem, kavárnami, galeriemi i kulturním životem - ideální na výlety i inspirativní zastavení. A pokud milujete přírodu, za dalších 25 minut se dostanete do Železných hor - CHKO s lesy, přehradou Seč a výbornými podmínkami pro turistiku i cyklistiku. Tato chalupa je ideální volbou pro ty, kteří hledají kombinaci rodinného pohodlí, přírody a praktického zázemí - ať už k trvalému bydlení, nebo jako rodinnou rekreační chalupu.


