Prodej bytu, 3+kk, 152 m²
Prodej byt 3+kk, 152㎡
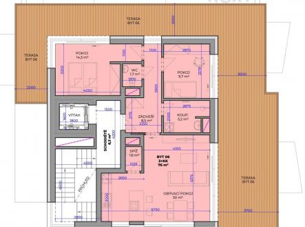
! Prodej luxusního střešního bytu 3+kk s terasou včetně 2 garážových stání v ceně ! Nabízíme k prodeji výjimečný střešní byt o dispozici 3+kk v moderním developerském projektu ve Fryštáku – lokalita Potoky, ulice Osvobození V. Jedná se o jednotku B06. Byt o podlahové ploše cca 70,7 m² je doplněn o velkorysou terasu o velikosti téměř 82 m², která vytváří unikátní prostor pro relaxaci, posezení i soukromí pod širým nebem. Nachází se ve 3. nadzemním podlaží novostavby s výtahem a nabízí moderní bydlení s důrazem na komfort, prostor a propojení interiéru s exteriérem. Hlavní přednosti bytu: - střešní byt s nadstandardní terasou - dispozice 3+kk s praktickým uspořádáním - novostavba – moderní standardy bydlení - dostatek světla a soukromí - 2 garážové stání v ceně - byt bude dostavěn do konce roku 2027 Lokalita: Fryšták nabízí klidné bydlení s výbornou dostupností do Zlína. Velkou výhodou je blízký nájezd na dálnici, díky kterému se rychle napojíte na hlavní tahy. V okolí najdete kompletní občanskou vybavenost i přírodu na dosah. Více informací u makléře. Pro komunikaci uvádějte evidenční číslo zakázky N117312.


