Pronájem - kanceláře, 78 m²
Pronájem kanceláře 78 m² náměstí Svobody, Frýdek-Místek - Místek
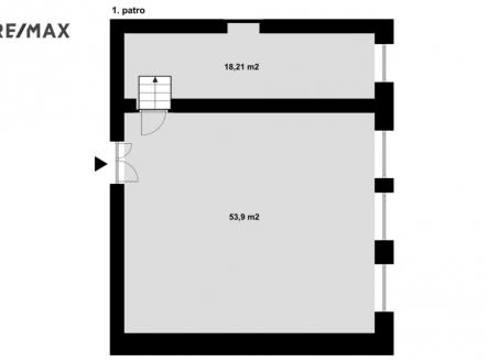
K pronájmu nabízíme stylový prostor s vnitřním vyvýšeným patrem, umístěný v historické budově přímo na Náměstí Svobody ve Frýdku-Místku. Jedná se o světlý a reprezentativní prostor, který svým uspořádáním nabízí široké možnosti využití – může sloužit jako cvičební studio, kancelář s oddělenou relaxační částí, showroom, ateliér, kreativní dílna či jiné podnikatelské zázemí. Dispozice zahrnuje otevřenou spodní část s přímým vstupem a velkým množstvím denního světla, na kterou navazuje vyvýšené vnitřní patro vhodné například pro klientskou zónu, odpočinek nebo pracovní kout. Součástí je toaleta a možnost využívat přilehlé zázemí objektu. Dostupnost: ihned Lokalita: prestižní, frekventovaná poloha – přímo na hlavním náměstí Nájemné: 10 000 Kč/měsíc + zálohy na energie Unikátní šance získat prostory v jedné z nejatraktivnějších lokalit Frýdku-Místku. Pro více informací či domluvení prohlídky nás neváhejte kontaktovat.


