Prodej - výrobní prostor, 663 m²
Jiná stavba , Frenštát pod Radhoštěm
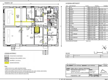
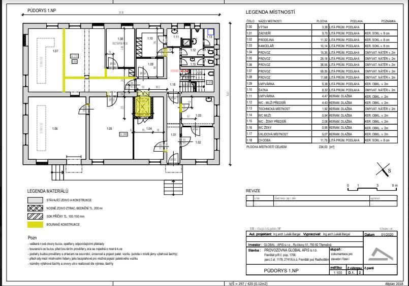
Předmětem dražby je soubor následujících nemovitých věcí: -parc.č. 1178 zastavěná plocha a nádvoří o výměře 315 m2, součástí je stavba č.p. 1706, jiná st. -parc.č. 2741/5 ostatní plocha o výměře 279 m2 Předmětem dražby jsou nemovité věci zapsané na listu vlastnictví č. 7486 pro katastrální území Frenštát pod Radhoštěm, spočívající zejména ve zděné budově č.p. 1706 se třemi nadzemními podlažími a navazujících pozemcích tvořících funkční celek s objektem. Budova je situována v zastavěné části obce Frenštát pod Radhoštěm, v lokalitě označované jako Martinská čtvrť, s přístupem po zpevněné obecní komunikaci. Vnitřní prostory předmětu dražby byly v letech 2020 – 2022 kompletně rekonstruovány, přičemž byly využívány jako výrobní a prodejní prostory v oblasti včelařské výroby. Předmět dražby je napojen na vodovod a kanalizaci, vytápění je zajištěno tepelným čerpadlem a ohřev vody elektrickým bojlerem. Celková zastavěná plocha Předmětu dražby dosahuje 807,58 m2 a celková užitná plocha Předmětu dražby dosahuje 662,72 m2. - 1. NP – o zastavěné ploše 296,99 m2 a podlahové ploše 233,27 m2 má tyto prostory: Zádveří 9,75 m2, výtah 3,38 m2, prodejna 11,32 m2, kancelář 10,14 m2, výrobní prostor 15,35 m2, výrobní prostor 29,60 m2, výrobní prostor 38,56 m2, výrobní prostor 59,35 m2, výrobní prostor 11,68 m2, výrobní prostor 5,38 m2, šatna 8,32 m2, umývárna 4,47 m2, WC muži předsíň 4,43 m2, technická místnost 1.92 m2, WC muži 0,94 m2, WC ženy předsíň 2,08 m2, WC ženy 0,95 m2, úklidová místnost 5,07 m2 a chodba 10,57 m2. - 2. NP – o zastavěné ploše 296,99 m2 a podlahové ploše 244,52 m2 má tyto prostory: schodiště 8,30 m2, výtah 3,38 m2, chodba 4,87 m2, chodba 5,14 m2, laboratoř 8,53 m2, kancelář 18,74 m2, výrobní prostor 30,77 m2, výrobní prostor 41,32 m2, výrobní prostor 14,89 m2, výrobní prostor 40,51 m2, výrobní prostor 31,33 m2, chodba 12,10 m2, schodiště 7,91 m2, předsíňka 2,36 m2, WC 1,22m2, šatna 4,12 m2, umývárna 3,07 m2 a kuchyňka 5,98 m2. - 3. NP – o zastavěné ploše 213,60 m2 a podlahové ploše 184,93 m2 má tyto prostory: výtah 3,38 m2, sklad 152,89 m2, sklad 12,66 m2, sklad 15,99 m2. Předmět dražby v současné době není pronajat a je možno jej ze strany vydražitele okamžitě začít užívat. Před uskutečním samotné dražby mohou být uskutečněny osobní prohlídky Předmětu dražby a to po předchozí domluvě. Soudní exekutor výslovně upozorňuje, že neodpovídá za správnost ani úplnost výše uvedeného popisu předmětu dražby, který je zpracován pouze informativně z dostupných podkladů. Předmět dražby je závazně vymezen výhradně v dražební vyhlášce. Soudní exekutor zároveň doporučuje všem dražitelům, aby si předmět dražby před účastí v dražbě osobně prohlédli, ověřili jeho stav na místě a řádně se seznámili jak s jeho faktickým, tak i právním stavem.


