Prodej bytu, 3+kk, 258 m²
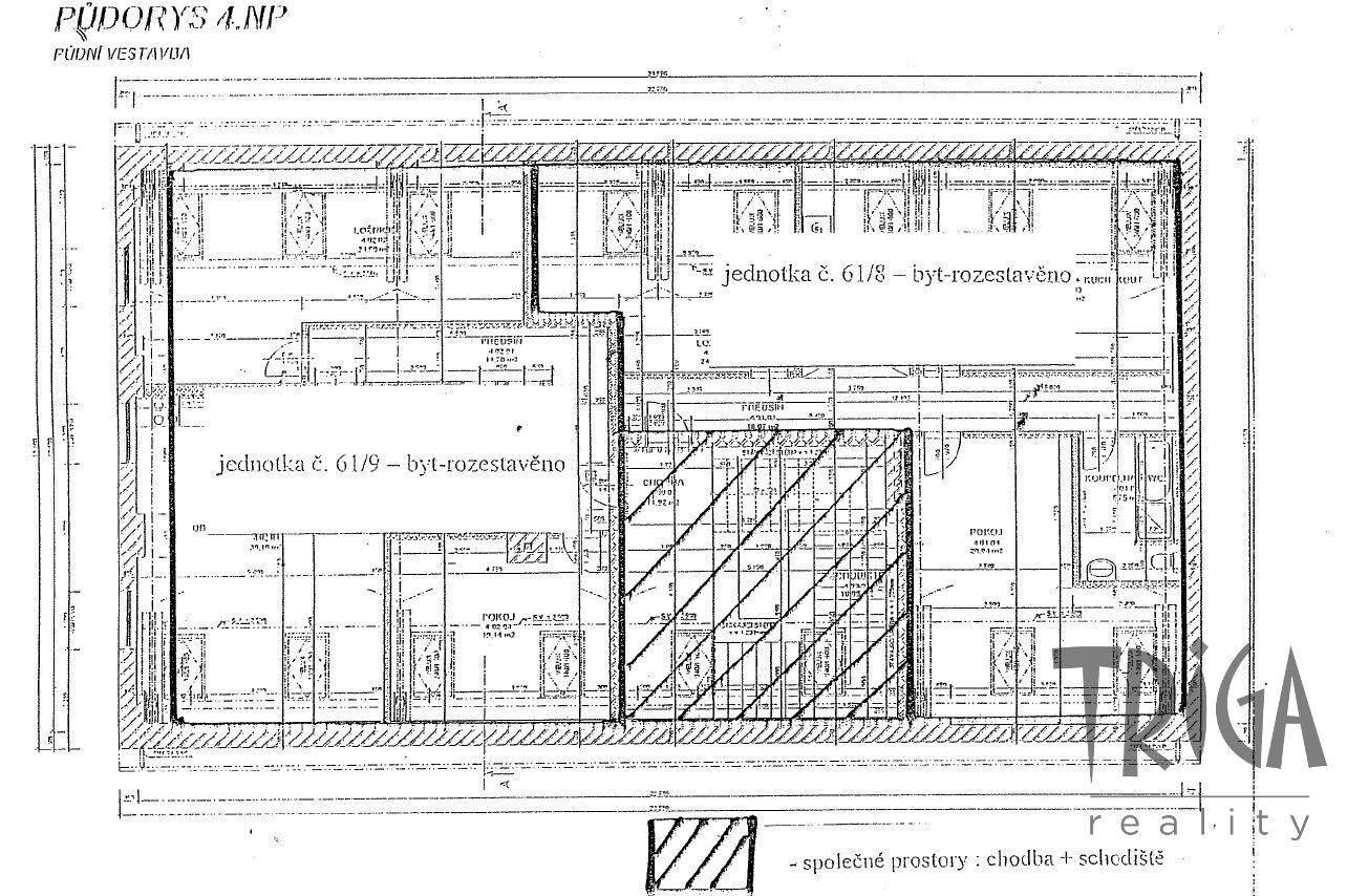
Dvůr Králové n. L. - Prodej dvou rozestavěných jednotek na pěší zóně
Nabízíme Vám ke koupi velmi zajímavý půdní prostor, rozdělený na dvě rozestavěné bytové jednotky č. 61/8 a 61/9, každou o dispozici 3+kk, v osobním vlastnictví. Celková výměra jednotky č. 61/8 činí 128,2 m² a jednotky č. 61/9 je 129,8 m². Prostor se nachází v centru Dvora Králové nad Labem, přímo na pěší zóně u náměstí. Jedná se o 4. nadzemní podlaží staršího bytového domu bez výtahu, který prošel kompletní rekonstrukcí společných prostor, se zachováním původních architektonických prvků a s novou vstupní bránou. Dům je napojen na dálkové vytápění, kanalizaci, veřejný vodovod a elektřinu. Ke každé bytové jednotce náleží sklep o výměře cca 15 m². K dispozici jsou dvě projektové dokumentace. První odpovídá současnému stavu se dvěma rozestavěnými bytovými jednotkami, druhá dokumentace řeší rozdělení půdního prostoru na čtyři menší bytové jednotky. Ke každé z variant bylo vydáno stavební povolení – v roce 2011 pro dvě bytové jednotky a v roce 2023 pro čtyři bytové jednotky. Jedná se o velmi lukrativní nabídku, ideální jako investiční příležitost. Další podrobné informace Vám rádi poskytneme v naší královédvorské kanceláři. Zak. č.: DK22605S PENB: G


