Prodej - dům/vila, 140 m²
Prodej domu 140 m², pozemek 859 m²
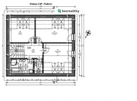
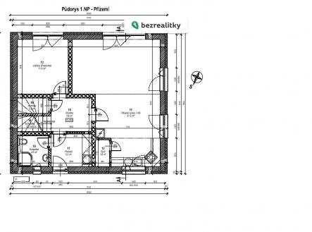
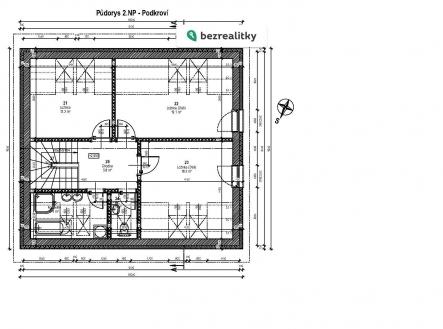
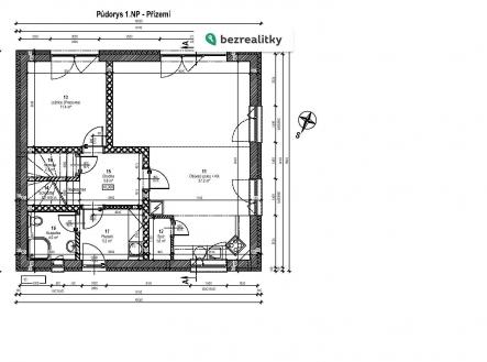
Moderní rodinný dům 5+kk v klidné obci Drhovy – komfortní bydlení kousek od Prahy Hledáte domov, který kombinuje klid venkova s rychlou dostupností do města? Nabízíme Vám novostavbu rodinného domu po kolaudaci v malebné obci Drhovy, jen 8 minut od Dobříše a přibližně 30 minut od Prahy. Ideální volba pro rodiny, které chtějí prostor, soukromí a moderní technologie. Co Vás čeká: · Pozemek: 859 m², oplocený, s přípravou na elektrickou vjezdovou bránu · Podlahová plocha: 140 m² · Dispozice: 5+kk o Přízemí: prostorný obývací pokoj s přípravou na kuchyňský kout, pracovna, koupelna se sprchovým koutem a WC, spíž, komora pod schodištěm, zádveří s ohřívačem vody o Patro: tři prostorné ložnice, samostatné WC, koupelna s vanou i sprchovým koutem Technologie pro Vaše pohodlí: · Tepelné čerpadlo + podlahové vytápění · Větrání s rekuperací pro zdravé klima · Vinylové podlahy v přízemí, dlažba v zádveří, koberce v patře · Energetická třída B – velmi úsporná Proč právě tento dům? · Klidná lokalita s výbornou dostupností · Moderní technologie a kvalitní provedení · Pozemek připravený na komfortní vjezd s elektrickou bránou · V obci mateřská škola – ideální pro rodiny s dětmi Tato nemovitost je určena výhradně přímým zájemcům o koupi. Na inzerát můžete také reagovat přímo na webu Bezrealitky: https://www.bezrealitky.cz/nemovitosti-byty-domy/965876-nabidka-prodej-domu-drhovy


