Prodej - dům/vila, 170 m²
Prodej rodinného domu 170 m², s pozemkem 850 m² v Dolních Dunajovicích
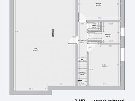
Nabízíme k prodeji samostatně stojící rodinný dům o dispozici 6+kk s užitnou plochou 169,95 m² a celkovou užitnou plochou 293 m², který se nachází v obci Dolní Dunajovice, ulice Zahradní. Dům stojí na vlastním pozemku o rozloze 850 m² v klidné obytné části obce s výhledem na Pálavu. Stavba byla zkolaudována v roce 1993 a již prošla rozsáhlou rekonstrukcí, která zahrnovala novou betonovou střešní krytinu včetně hydroizolace, výměnu oken a dveří za plastová s trojskly a renovaci interiéru. Dům je zděný, založený na betonových základových pasech. Suterénní zdivo je z pálených bloků o tloušťce 44 cm, opatřené izolací z lepenky IPA a přizdívkou 10 cm. Obvodové zdivo tvoří třívrstvý plášť Siporex + minerální vata + keramické zdivo o celkové tloušťce 45 cm. Stropy jsou keramické, z nosníků a vložek MIAKO. Překlady jsou železobetonové. Komín je zděný z plných cihel a vyvložkovaný o Ø200 mm. Krov je dřevěný, typu stojatá stolice s vaznými trámy. Schodiště je železobetonové a omítky jsou vápenné, štukové. 1. NP: vstupní zádveří, hala, obývací pokoj s kuchyňským koutem včetně značkových spotřebičů BOSCH, tři samostatné pokoje a nová luxusní koupelna s toaletou a sprchovým koutem typu walk-in. 2. NP: chodba, dva pokoje, koupelna, samostatné WC a půdní prostor o ploše 84 m², vhodný k vestavbě dalších pokojů. 1. PP: hala, chodba, prádelna a několik skladových místností o celkové ploše 123,37 m², vhodných pro dílnu nebo technické zázemí. Vytápění je elektrické podlahové, řízené termostaty, doplněné výkonnými krbovými kamny umístěnými v obývacím pokoji. Ohřev vody zajišťuje elektrický bojler. Dům je napojen na veřejný vodovod, kanalizaci a elektřinu. Je možné připojit i plyn. Součástí prodeje je většina vnitřního vybavení, včetně kuchyňské linky se spotřebiči, jídelního stolu, obývací sestavy, regálů a dalšího nábytku, tak jak je uvedeno na fotografiích, případně po dohodě i jinak. Na pozemku se nachází okrasná zahrada s terasou, zpevněnými plochami a průjezdem do dvora s možností parkování více vozidel. Součástí prodeje je také samostatně stojící historický vinný sklep s lisovnou o zastavěné ploše 126 m², vhodný k využití pro výrobu i skladování vína nebo ke komerčnímu využití. Dům je technicky v pořádku, velmi dobře udržovaný a přiměřeně opotřebený svému stáří. Je vhodný pro velkou rodinu, vícegenerační bydlení a ideální pro milovníky vína a krás jižní Moravy. Dům je připraven k nastěhování a je možné ho financovat i hypotečním úvěrem, s jehož sjednáním vám rád pomůže náš hypoteční specialista. Pro více informací nebo osobní prohlídku kontaktujte makléře.


