Pronájem - dům/vila, 130 m²
Pronájem zděné novostavby o dispozici 4kk
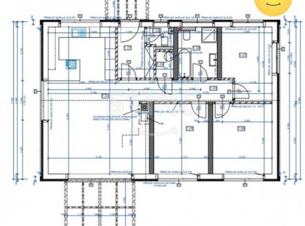
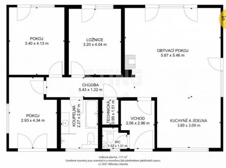
Nabízíme k pronájmu novostavbu zděného domu s pozemkem o výměře 1244 m2, v klidné a tiché části obce Dolní Domaslavice. Dům s energetickou náročností "B" velmi úsporná je vystavěn z Porothermu, vytápění podlahové elektrické, obývací pokoj s jídelnou a kuchyní lze vytápět i krbovými kamny. Dům je připojen na dálkový vodovod, ohřev vody El. bojlerem a odpady svedeny do pevné plastové jímky. Omítky vnitřní vápenné štukové, fasáda omítky silikonové, sedlová střecha z AL plechu. Dispozice bytu je 4 kk, prostorný obývací pokoj oddělený od kuchyně jídelním koutem ( kuchyňská linka je vybavena varnou deskou, el. troubou, vestavěnou myčkou a mikrovlnou troubou ), ložnice, dva dětské pokoje, nebo dětský pokoj a pracovna. Z každého jednotlivého pokoje je samostatně možnost výstupu do zahrady francouzským oknem. Tento od vnějšího pohledu menší, ale uvnitř prostorově dostatečně velký dům má v 1. NP ještě komoru, koupelnu s vanou, s proskleným sprchovacím koutem a WC. Pozemek je rovinatý s příjezdem po obecní asfaltové komunikaci. Před domem je na vlastním pozemku parkovací stání pro 2 osobní vozy.


