Prodej - dům/vila, 450 m²
Rodinný dům, Mírové náměstí, Dobříš
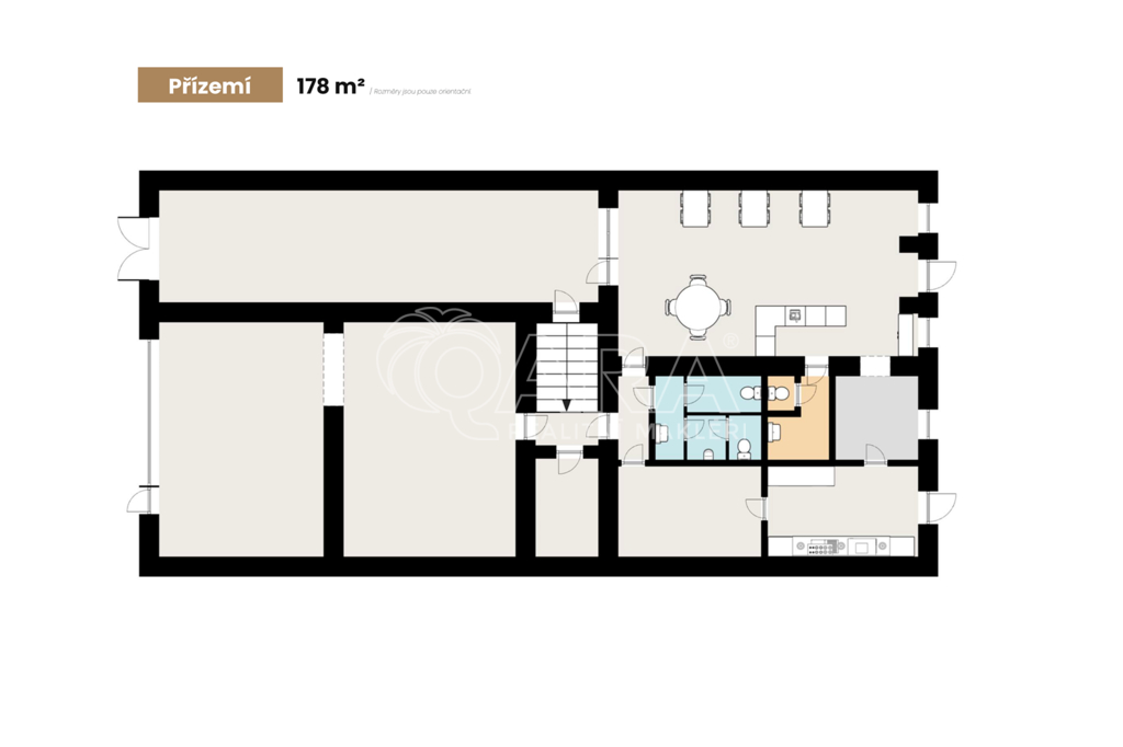
V exkluzivním zastoupení majitelů Vám nabízíme prodej rodinného domu, který se nachází v centru Dobříše na Mírovém náměstí. Původní prvorepublikový dům se zahradou, který sloužil pro podnikání a komfortní bydlení rodiny majitele, prošel postupnými stavebními úpravami až do dnešní podoby. V přízemí se nachází dva nebytové prostory – nově rekonstruovaná kavárna s vlastní výrobnou (116 m2) a se zahrádkou, a dále prodejna knih s vchodem z náměstí (62 m2). V prvním patře jsou dva byty aktuálně užívané jedním majitelem, oba byty mají přístup na zelenou střechu užívanou jako terasa, ze které lze sestoupit do navazující zahrady. Dispozičně se jedná o byt 3+1 (83,5 m2), který byl v roce 2009 kompletně rekonstruován včetně el. rozvodů, a dále byt 2+kk s balkonem (51 m2). V druhém patře je k dispozici byt 2+kk (43 m2) – tento je aktuálně využíván jako ateliér, dále menší obytná garsonka (20 m2), čerstvě rekonstruovaný byt 2+kk s balkonem (50 m2), a dále jeden samostatný pokoj s příslušenstvím (11 m2). IS: elektřina 220/380 V, vodovod, kanalizace, topení – el. přímotopy, akumulační kamna, v bytě 3+1 navíc kamna na TP, v domě je instalován optický kabel. Velkým bonusem pro tuto nemovitost je zahrada o celkové ploše 630 m2 přístupná z ulice Fričova, která může mít multifunkční využití. Zajímavá příležitost spojení bydlení s podnikáním, popř. k investičním účelům pro nájemní využití – pro další informace prosím volejte nebo pište na níže uvedené kontakty. Hodnota PENB bude upřesněna po dodání, uvedené výměry jsou orientační.


