Prodej - pozemek pro bydlení, 282 m²
Prodej stavebního pozemku 282 m2 v Dobříči
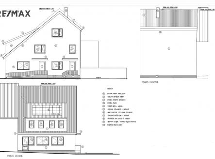
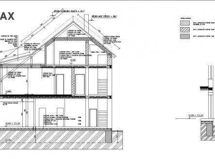
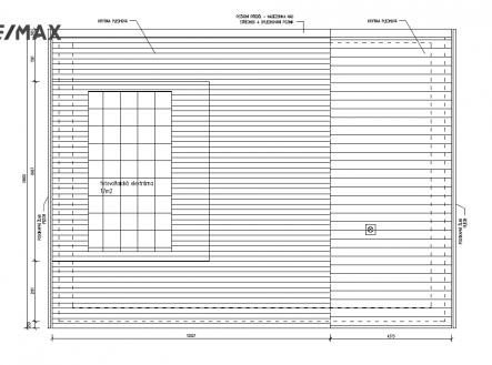
Exkluzivně nabízíme pozemek se stavebním povolením pro výstavbu domu o čtyřech jednotkách. V návrhu je v přízemí velká dětská skupina s kapacitou 19 dětí vč. dětí pod 3 roky věku (od 1 roku věku). V prvním patře jsou 2 bytové jednotky 1kk a v podkroví je další jednotka (nebytový prostor - pracovna/ateliér s koupelnou a WC). Zastavěná plocha 10,5*13,5 + 1,3*7,8+1,3*2,8= 156 m2. Celková užitná plocha je 286,3 m2. Pro objekt jsou navrženy nové přípojky vody, kanalizace, plynu. Orientační náklady stavby jsou 12 mil. Kč. Objekt bude napojen na stávající areál s přístupem z místní komunikace. V rámci stavební parcely je dům umístěn na jižním okraji. Objekt bude řešen jako nepodsklepená stavba s přízemím a dvěma nadzemními podlažími. Vytápění objektu bude teplovodní s radiátory a kondenzačním kotlem na plynná paliva. Kotel je umístěný v technické místnosti pod schody. Příprava TUV bude probíhat výhradně v zásobníkovém ohřívači o objemu 250 litrů, napojeném na plynový kondenzační kotel. PENB B. V obci Dobříč je fotbalové hřiště a dvě dětská hřiště. Veškerá občanská vybavenost je okolních blízkých obcích (v Rudné, Nučicích, Jinočanech a Zbuzanech). Nedaleko je autobusová zastávka, ze které se za 10 minut pohodlně dostanete na metro B Zličín. Pro více informací neváhejte kontaktovat realitního makléře. Prodávající si vyhrazuje právo vybrat kupujícího na základě jím zvolených kritérií.


