Pronájem - obchodní prostor, 395 m²
Pronájem obchodně skladových prostor 395 m², Dobřejovice
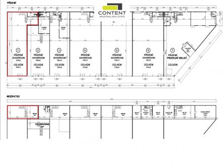
Dobřejovice. V zastoupení majitele a bez provize nabízíme prodejní skladové prostory 395 m², které se nachází v novém komerčním parku na okraji obce Dobřejovice. V těsné blízkosti dálnice D1 a městského okruhu D0. Vzdálenost k dálničnímu nájezdu na D1 2,5 km a vzdálenost nájezdu D0 je 5,0 km. - k dispozici od 01.01. 2026 - showroom, prodejna, kanceláře a sklady - přízemí se zázemím a sprchou 303 m² - vestavěné patro v zadní části prostoru 92 m² - vnitřní světlá výška skladu 6,2 m - průmyslová bezprašná podlaha - stěny PUR panel tl. 100 mm, U=0,2 W/m²K - tepelně izolovaná střecha, střešní okna - čelní prosklená výloha s vchodem a další samostatný vchod pro zásobování zezadu - vytápění / klimatizace TČ s podstropními jednotkami - celková plocha prostoru je 395 m² - parkoviště pro zákazníky Cena nájmu je 249,-Kč/m²/měsíc + záloha na zúčtovatelné poplatky za služby 19,- Kč/m²/měsíc. Pro více informací nás kontaktujte, rádi Vám zajistíme prohlídku nemovitosti.


