Prodej - dům/vila, 600 m²
Bytový dům s pozemkem o výměře 647 m2 v centru obce Dobrá u Frýdku Místku
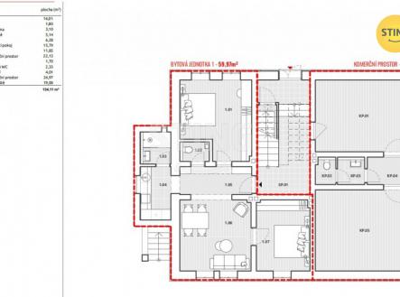
Nabízíme exkluzivně k prodeji cihlový rodinný dům v malebné obci Dobrá, který představuje jedinečnou příležitost pro ty, kteří hledají investici nebo prostorné bydlení. Na tomto domě byla nedávno zahájena pečlivá přestavba, jejímž cílem je vybudování tří zcela nových bytových jednotek, které se budou lišit svou velikostí, aby vyhovovaly různorodým potřebám budoucích obyvatel. Kromě toho je v plánu vybudovat také jeden nebytový prostor, který může sloužit jako kancelář nebo obchodní prostor. Dům je přístupný hlavním vchodem, za kterým se nachází široké schodiště vedoucí jak k jednotlivým bytům v přízemí, tak i do vyšších pater, což zajišťuje pohodlný přístup a rozdělení prostoru. V současné době byly již provedeny důkladné bourací práce, které připravily prostor pro další stavební úpravy. Nově byly vyzděny některé příčky, které pomáhají definovat nové dispozice bytů, a byl rovněž proveden rozvod vody, odpadů a ústředního topení ke každému z bytů v prvním a druhém nadzemním podlaží. Navíc byly do půdního prostoru vyvedeny stoupačky, což tento prostor činí ideálním pro potenciální vestavbu dalších bytů, rozšiřujících obytnou kapacitu domu. Střecha domu a její plechová krytina jsou v dobrém stavu, což může být pro budoucí majitele velkou výhodou, neboť nebude vyžadována okamžitá investice do její obnovy. Celková velikost pozemku činí 647 m², z čehož je 340 m² určeno jako zastavěná plocha včetně nádvoří a zbývajících 307 m² tvoří zahrada, která nabízí prostor pro relaxaci nebo zahradničení. K domu náleží také kompletní přípojky na elektřinu, vodu a plyn, což poskytuje pohodlí moderního bydlení. Odpady jsou prozatím svedeny do vlastního septiku, což je řešení, které může být v budoucnu přizpůsobeno potřebám nového majitele. Nemovitost se nachází v klidné a vyhledávané lokalitě nedaleko centra obce, která zaručuje výbornou dostupnost všech důležitých služeb, jako jsou obchody, školy nebo lékařská péče. Tento dům je ideální jak pro ty, kteří hledají budoucí vlastní bydlení pro rozšířenou rodinu, tak i jako atraktivní investiční příležitost pro menší developery, kteří chtějí rozšířit svůj portfolio. Pro vážné zájemce je k dispozici částečná dokumentace budoucího stavu, která poskytne lepší představu o potenciálu tohoto projektu. Pro více informací a prohlídku nemovitosti mě neváhejte kontaktovat.


