Prodej - dům/vila, 167 m²
Prodej domu 167 m², pozemek 817 m²
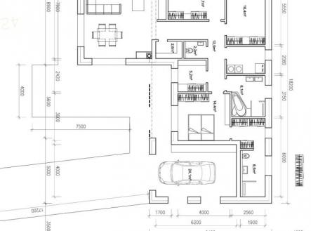
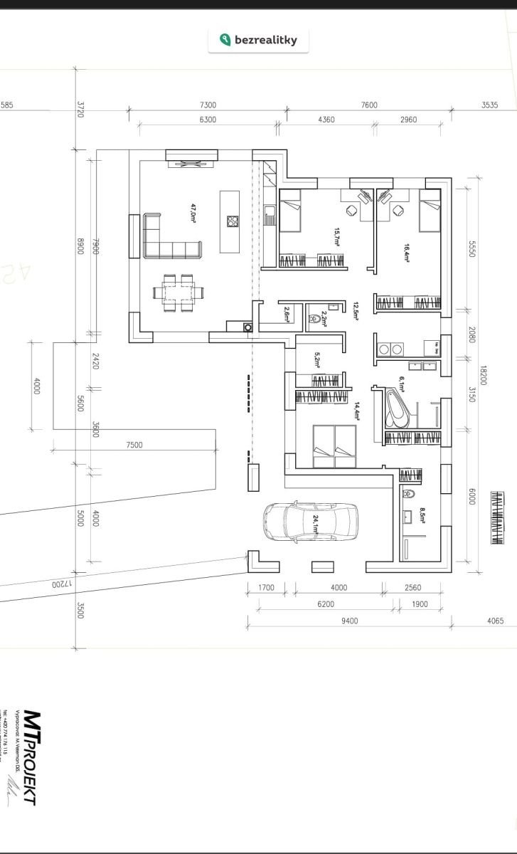
Nabízím k prodeji rodinného domu v obci Divišov, cca 40 km od Prahy, promyšlený s velmi praktickým řešením, dispozice 4+kk s garáží nabídne bezmála 170m2 podlahové plochy na pozemku o rozloze 814m2. RD je připojen na městskou kanalizaci a vodovod a byl zde kladen důraz na velmi úsporný provoz o čemž svědčí použití 300mm cihel Porotherm s izolací 200mm a šestikomorových oken s izolačními trojskly, dále pak dům nabídne systém rekuperace, který spolu s výkonným tepelným čerpadlem a podlahovým vytápěním zajistí minimalizaci tepelných ztrát a třešničkou na dortu je pak systém splachování toalet akumulovanou dešťovou vodou, to vše zasazené v nádherné přírodě s dechberoucím výhledem ze všech oken obytných místností. Termín dokončení - březen 2026. RK prosím nevolat. Cena je konečná - tzn. bez dalších nákladů v podobě provizí či právního servisu. Můžete mě kontaktovat prostřednictvím zpráv na komunikační platformě a domluvit si prohlídku této zajímavé nabídky. Těším se na vaši zprávu. Tato nemovitost je určena výhradně přímým zájemcům o koupi. Na inzerát můžete také reagovat přímo na webu Bezrealitky: https://www.bezrealitky.cz/nemovitosti-byty-domy/953095-nabidka-prodej-domu-k-vodojemu-divisov


