Prodej - dům/vila, 125 m²
Prodej rodinného domu 125 m2, pozemek 612 m2
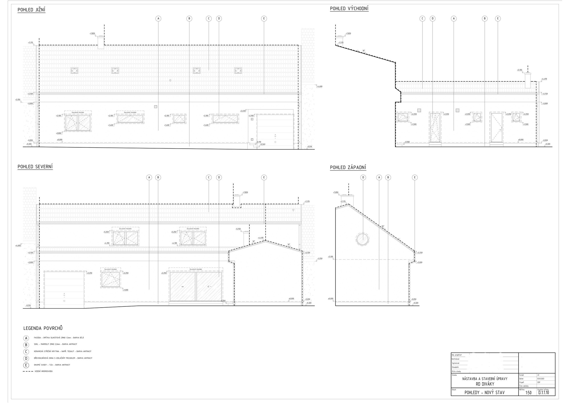
Ve výhradním zastoupení majitele Vám nabízíme k prodeji přízemní rodinný dům o dispozici 2+1 se zahradou v obci Diváky, okres Břeclav. Nemovitost je určena ke kompletní rekonstrukci, která zahrnuje střechu, rozvody inženýrských sítí, podlahy a okna, případně může být demolována a nahrazena novostavbou. V tuto chvíli je již vydané stavební povolení na rekonstrukci a k dispozici je vypracovaný projekt. Po dohodě s majitelem je možné zajistit realizaci hrubé stavby dle schválené projektové dokumentace. Celková plocha pozemku činí 612 m², z toho zastavěná plocha je 218 m². Dvůr a zahrada mají dohromady 394 m². Uliční šíře domu je 19,6 m. Dům má zavedenou přípojku elektřiny, přípojky vody a plynu jsou přivedeny k hranici pozemku. Napojení na dešťovou kanalizaci je možné v chodníku před domem. Na pozemku se nachází také vlastní studna. Parkování osobního nebo nákladního vozu je možné v průjezdu nebo přímo ve dvoře, přístupném z ulice přes dřevěná vrata o rozměrech 2,84 × 2,91 m. K hlavnímu vchodu domu vede malá oplocená předzahrádka. Po vstupu do chodby se vpravo nachází pokoj o výměře 20,6 m², vlevo kuchyně o velikosti 17,1 m². Z kuchyně je přístup do koupelny (3,66 m²), případně lze pokračovat do ložnice (20,6 m²). Chodbou projdete na prostornou prosklenou verandu (23 m²) s výhledem do dvora. Z verandy vedou dveře vpravo do průjezdu, vlevo pak do druhého, zastavěného křídla domu. To tvoří tři technické místnosti propojené prosklenou chodbou: první (12,2 m²), pravděpodobně využívaná ke zpracování masa, druhá (7,4 m²) s původním plynovým kotlem a třetí (13 m²) sloužila jako sklad. Na konci chodby se nachází samostatné WC (1,5 m²). Odtud se dále prochází na dvůr, kde se nachází chlév (12,6 m²) a prostorná zastřešená kůlna s udírnou. Obec Diváky leží v malebném údolí obklopeném kopci a listnatými lesy Ždánického lesa. Svahy okolních kopců pokrývají pole a vinice, které společně vytvářejí klidné a atraktivní prostředí. Obec je známa také jako bydliště spisovatelských bratří Mrštíků. Obyvatelé mají k dispozici tzv. víceúčelovou budovu s poštou, ordinací praktického lékaře, kadeřnictvím, hasičskou zbrojnicí a základní školou. Obec je plynofikována a většina domácností je napojena na veřejný vodovod i kanalizaci. Kulturní a společenský život zajišťuje obecní úřad ve spolupráci s místními spolky. K dispozici je také veřejná knihovna s připojením k internetu. V obci žije přibližně 511 obyvatel. Diváky se nacházejí 30 minut jízdy od Brna (cca 35 km) a pouhých 9 km od nájezdu na dálnici D2 v Hustopečích.


