Prodej - dům/vila, 155 m²
Prodej rodinného domu, 155 m2, pozemek 1856 m2, Dešov
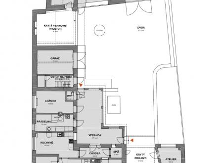
BO! Vám nabízí prostorný rodinný dům k rekonstrukci v obci Dešov. Dešov je malebná obec kraji Vysočina, ležící 25 km jihozápadně od Třebíče. Obklopená kopcovitou krajinou s lesy a zemědělskou půdou. Nabízí turistické trasy a cyklostezky, včetně spojení k Vranovské přehradě. Obec žije bohatým kulturním životem. Dodržují se staré zvyky a tradice - pálení čarodějnic, stavění máje, masopustní průvod, pouť, posvícení atd. V obci je ZŠ a MŠ, praktický a dětský lékař, pošta, restaurace, obchod se smíšeným zbožím. Dům je napojen na veřejný vodovod a plynovod, má vlastní studnu, kanalizace je řešena jímkou. Vytápění zajišťují plynové WAV, možno využít i kamna na TP. Ohřev vody ve sprše je vyřešen bojlerem, umyvadla a dřez mají mísící baterie. Kromě obytných místností nabízí dům i další prostory, které nový majitel bude jistě umět efektivně využít. Výhodou je i rozlehlý pozemek, který nabízí široké možnosti využití. S financováním Vám rádi pomůžeme a dle vašich požadavků a možností najdeme nejlepší řešení přímo na míru. Dále jsme schopni v případě zájmu zajistit čerpání dotace ,,Oprav dům po babičce" Těším se na Vás na prohlídce!


