Prodej - dům/vila, 155 m²
Prodej RD v obci Děpoltovice - Nivy
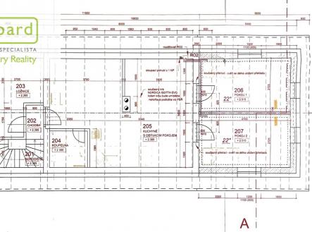
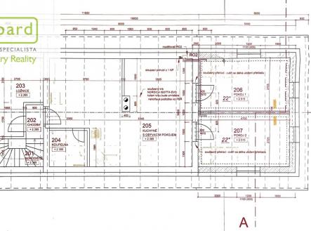
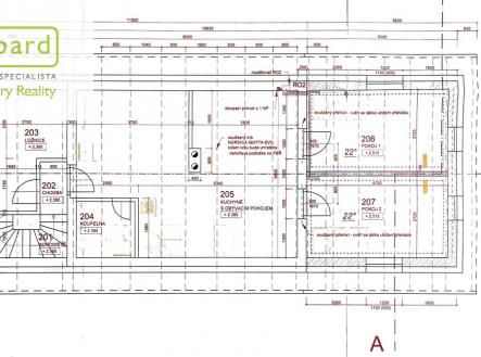
Toužíte-li po klidném bydlení, rádi Vám zprostředkujeme prodej rodinného domu v obci Děpoltovice - Nivy. Předmětem prodeje je dvoupodlažní dům s obytným podkrovím o obytné ploše 155 m2. Před třemi lety byl stávající dům rozšířen o přístavbu a prošel kompletní rekonstrukcí. V přízemí (74,7 m2) se nachází zádveří, ze kterého je přístup do technické místnosti. Z té vejdeme do kuchyně a následně dalších dvou místností, z níž jedna disponuje vstupem na terasu. Dále je zde koupelna se sprchou a samostatné WC. Pod předsíní se nachází sklep, který je přístupný schodištěm zvenku. Točitým schodištěm proti vstupu do technické místnosti se dostaneme do druhého nadzemního podlaží domu (80 m2). Zde se nachází ložnice, obývací pokoj s kuchyňským koutem, dva samostatné dětské pokoje a koupelna s WC. V části domu je položeno podlahové vytápění, zbytek je řešen radiátory. Veškeré vytápění domu a ohřev teplé vody je zajištěno tepelným čerpadlem. Jako doplňkový zdroj tepla slouží krbová kamna v obývacím pokoji. Pro ohřev teplé vody je v technické místnosti umístěn bojler a dále akumulační nádoba sloužící k ohřevu vody pro vytápění. Dům je zateplen a má novou fasádu. Elektřina je v mědi, rozvody vody v plastu. Přípojka plynu ani kanalizace zde není. Pitná i užitková voda je řešena vrtanou studnou a jako záloha je v zemi zásobník na pitnou vodu o kapacitě 7,5 m3. V jednání je napojení domu na veřejný řad, který obec v nejbližší době chce v místě vybudovat. Zahrada nabízí místo odpočinku s krásným výhledem do přírody na okolní lesy. Parkování je možné jak přímo u domu, tak před domem. Tím, že má dům dva samostatné vchody, je možnost využít dům jako dvougenerační, nebo oddělené prostory použít pro podnikání, které může generovat následný příjem. Dojezdová vzdálenost do okolních obcí, jak Nové Role, tak Karlových Varů je velice dobrá, Prohlídku domu Vám rádi zprostředkujeme, s financováním dokážeme pomoci. Více informací u makléře pod ID nabídky 11853


