Pronájem bytu, 3+kk, 61 m²
Pronájem 3+kk 59 m²
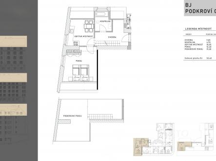
Pronájem jedinečného podkrovního bytu 3KK – Děčín, Podmokly. Pronájem stylové a prostorné bytové jednotky o celkové výměře 61 m², nacházející se v kompletně revitalizovaném domě v oblíbené městské části Děčín – Podmokly. V zastoupení majitele, Vám nabízíme k pronájmu, hezký byt 3+kk s mezonetovým prostorem, který je připraven splnit všechny vaše požadavky pro pohodlné a praktické bydlení. V celkové ceně je zahrnut nájem spolu s energiemi, elektřina, plyn a voda pro dvě osoby. Dispozice bytu: • Hlavní obytný prostor 3KK 40 m² s dostatkem denního světla • Mezonetový prostor o velikosti 19 m² – ideální jako ložnice, pracovna nebo ateliér • Moderní bytová jednotka s prvotřídním vybavením a materiály, interiérové dveře • Vinylové podlahy s odolnou nášlapnou vrstvou, SDK podhledy se zapuštěnými LED světly. • Stylová obytná kuchyň, vybavená myčkou nádobí, sklokeramickou deskou, elektrickou troubou. • Koupelna je osazena vanou. • Byt je osazen střešními okny s trojskly. • Příprava pro instalaci přenosné klimatizační jednotky. Dům a lokalita: • Dům prošel kompletní revitalizací – nové rozvody, fasáda, střecha, okna, výtah i společné prostory • Solární ohřev teplé vody a moderní plynová kotelna. • Na velkém dvoře, v zadní části domu najdete osvětlenou pergolu s posezením. • K dispozici je i sklepní kóje, kde je vstup z vnitřního schodiště. • Vstupní dveře jsou protipožární, interiérové rámové s prosklením. • Výborná dostupnost – v pěší vzdálenosti hlavní vlakové i autobusové nádraží • Veškerá občanská vybavenost v okolí – obchody, kavárny, školy, zdravotní střediska Pro koho je byt ideální? Pro jednotlivce, páry nebo kreativní duše hledající inspirativní prostor s výbornou dostupností a atmosférou podkroví. K nastěhování je od 1.12.2025. Neváhejte nás kontaktovat pro více informací nebo domluvení prohlídky!


