Prodej - obchodní prostor, 283 m²
Obchodně-komerční prostor se zázemím, Děčín-Podmokly, ul. Ruská
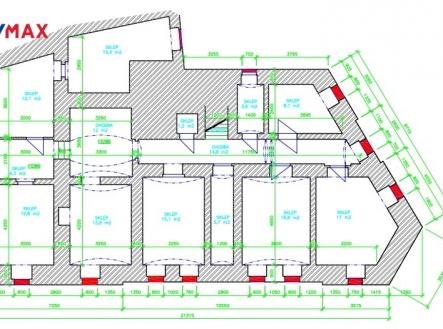
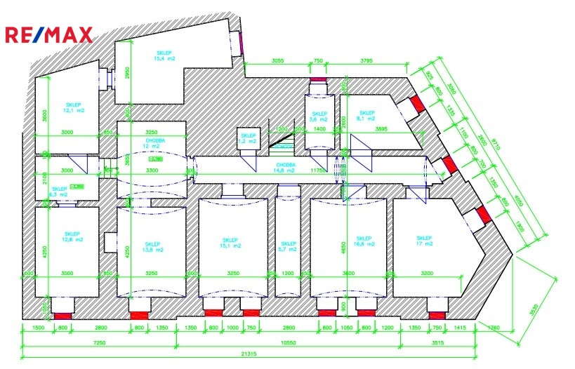
Nabízíme k prodeji prostory k podnikání v centru statutárního města Děčína-Podmokly. Jedná se o prodejní jednotku se zázemím, která se nachází cca 100 m od Mírového náměstí v ulici Ruská. Samotná prodejna 1.NP (zastavěná plocha 283,90 m2, užitná plocha 220 m2) je nyní koncipována jako provozovna-prodejna maso-uzeniny s technickým zázemím pro vlastní provoz, skladování a činnost. Celý prostor je kompletně chlazený, a to již od nákladové rampy. Certifikovaná provozovna pro bourárenskou (červeného a bílého masa) a výrobní činnost vč. skladování. Prodejna je kompletně vybavena vč. skladově-pokladního systému, vážného systému vah do PC, datových rozvodů a kamerového systému a kompletního strojního vybavení pro výrobu a expedici masa. Technické zázemí je situováno do 1.PP a jedná se o strojovnu chlazení, šatny, odpočinkovou místnost, umývárnu přepravek a obalů. Původní sklepní prostory jsou po kompletní rekonstrukci (rozvody odpadních vod, vč. jímací a přečerpávající stanice odp. vod a tuhých částí, elektrické rozvody vč. nové rozvodové skříně, rozvody datových kabelů vč. nové servrovny, zálohové PC stanice a úložiště dat, podlahy s izolací). Zásobování je řešeno vlastní nákladovou rampou přímo do chlazeného prostoru. Dům prošel v letech 2008-2016 nákladnou rekonstrukcí v několika etapách (střecha, bytové jednotky, odpady a stoupačky, kompletně nebytové prostory i se zázemím v 1.PP). Dům je zateplen a je připojen na veškeré dostupné sítě (voda, el. Energie, plyn, kanalizace). Přístup a příjezd i nákladních vozidel po obecních komunikacích. V případě většího podnikatelského záměru, lze koupit celou nemovitost vč. 6 BJ (3 x 97,3 m2 a 3 x 85,6 m2) a půdního prostoru, kde lze zbudovat mezonetové byty či další samostatné jednotky. Unikátní výhody této nabídky jsou: umístění polohy v centru, vlastní nákladová rampa přímo do chlazeného prostoru v 1.NP (agregáty v 1.PP), kompletní vybavení prodejny vč. pokladního systému propojeného se skladovým systémem, datové rozvody, kamerový systém a přenos do PC, klimatizovaný prostor celé prodejny, veškerá povolení a certifikáty k činnosti, dostatečná kapacita příkonu od ČEZ, historie podnikání. Prostor je ideální pro prodejnu a výrobnu stávajícího sortimentu (maso-uzeniny, lahůdky) nebo malo i velkoobchod O/Z či květin (s využitím stávajícího systému chlazení) či jakékoli další podnikání s provozovnou se vstupem z ulice a velkými výlohami. Pokud Vás nabídka zaujala, tak kontaktujte makléře nabídky, který Vám poskytne veškeré další podrobné informace.


