Prodej - dům/vila, 98 m²
Rodinný dům 2+1 se zahradou a dvorem v centru Dačic
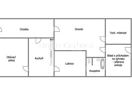
Hledáte bydlení v centru města, ale přitom s kouskem soukromí? V samotném srdci Dačic nabízím řadový rodinný dům o dispozici 2+1 s možností rozšíření o další místnosti – jedna z nich už je dokonce částečně připravena. Užitná plocha domu je 98 m², celková výměra pozemku činí 349 m². Nemovitost je napojená na obecní vodovod i kanalizaci. Vytápění zajišťují nové úsporné plynové karmy. Dům prošel částečnou rekonstrukcí a je ihned obyvatelný, ale zároveň nabízí prostor pro úpravy podle vašich představ. Součástí nabídky je i vizualizace interiéru, která vám pomůže lépe si představit budoucí podobu jednotlivých místností a celkový potenciál domu. Za zmínku stojí uzavřený dvůr, který poskytuje klid a soukromí. Navazuje na něj zahrada – ideální pro relax, děti, domácí mazlíčky nebo menší zahrádku. Dům se nachází v samotném centru Dačic, odkud máte všechno důležité v docházkové vzdálenosti: - škola a školka - obchody, kavárny, restaurace - lékárna a pošta - autobusové nádraží - městský úřad - zdravotní středisko - kulturní dům a zámek Dačice - městský park a sportoviště Město nabízí vše, co potřebujete pro pohodlný každodenní život i volný čas. S financováním vám ráda pomohu – spolupracuji s ověřeným hypotečním specialistou, který vám zdarma spočítá možnosti a pomůže vybrat nejvýhodnější variantu. Nezáleží, jestli už hypotéku řešíte, nebo teprve zvažujete, co si můžete dovolit – začít se dá vždy bezpečně a s přehledem. Pro koho je nemovitost ideální? - mladý pár, který hledá vlastní bydlení - seniory, kteří ocení centrum města a klidný dvorek - investiční příležitost k pronájmu Máte zájem nebo jen otázku? Neváhejte mě kontaktovat – klidně i o víkendu. Ráda si najdu čas a vše vám vysvětlím osobně.

