Prodej - dům/vila, 70 m²
Prodej RD 3+kk Čistá u Rakovníka
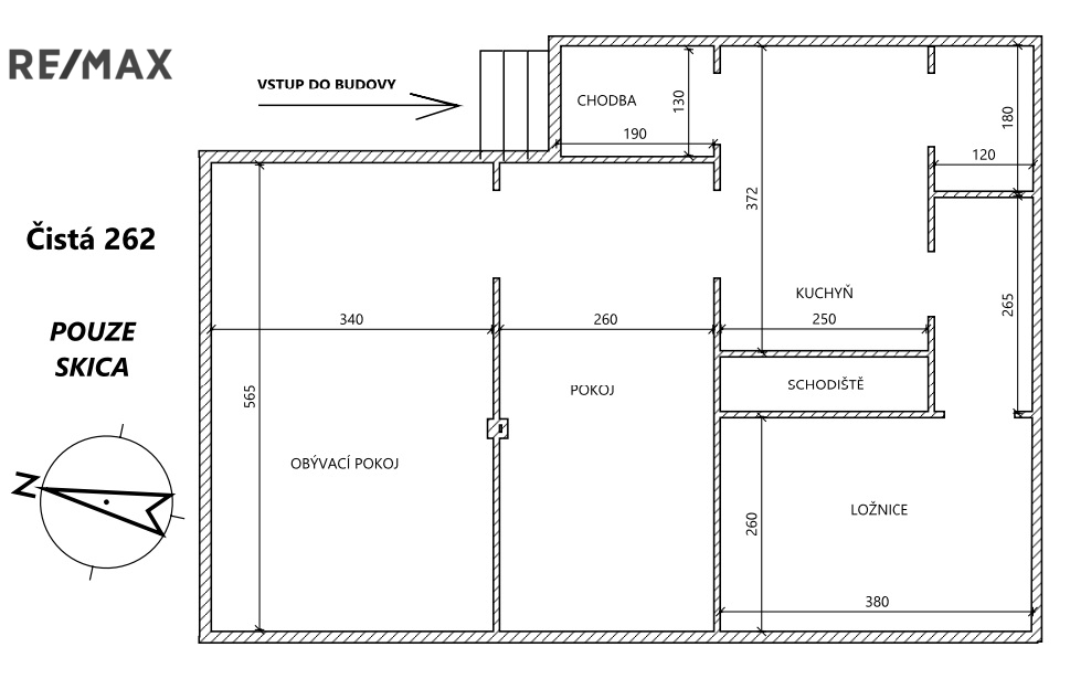
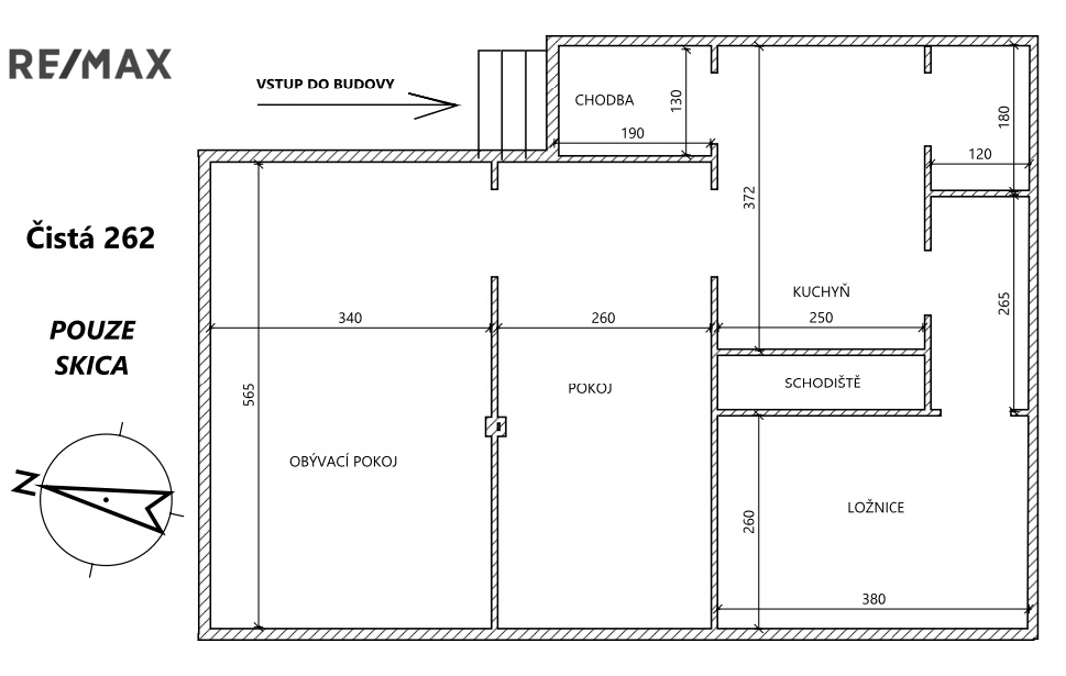
Nabízíme k prodeji bývalý drážní domek o dispozici 3+kk v Čisté u Rakovníka se zastavěnou plochou 88 m2 a vlastním pozemkem o celkové výměře 543 m2. Dům byl vystavěn z cihel, je z 2/3 podsklepen, střecha je z pálených tašek - bobrovek. Jak je vidět z fotodokumentace, nemovitost je určena k celkové rekonstrukci. Při rekonstrukci se nabízí vybudování obytného podkroví. Na zahradě je studna z betonových skruží, vodovod i kanalizace jsou na kraji pozemku a nová el. přípojka je přivedena na dům. Majitel nabízí pomoc/konzultaci s vyřízením dotací NZÚ (zejm. oprav dům po babičce). Pozemek je rovinatý a přímo přiléhá k málo frekventované obecní komunikaci. Železnice vedoucí do města Rakovník má pouze víkendový provoz a to 4 páry vlaků za den. Obec Čistá má necelých 900 obyvatel, najdeme zde Obecní úřad, ZŠ, MŠ, COOP, muzeum, poštu, restauraci. Do okresního města Rakovník je to cca 16 km, pokud jste z Plzně, máte to 45 km a na kraj prahy je to cca 70 km a jste tam do hodinky. Uvedená cena nemovitosti je k jednání. Pro další informace nebo prohlídku informujte makléře nemovitosti.


