Prodej - dům/vila, 320 m²
Prodej Rodinný dům, 320㎡
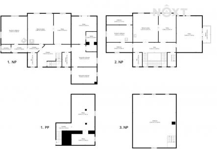
Hledáte místo, které vám nabídne prostor, soukromí a nekonečné možnosti? Tato výjimečná usedlost z roku 1895 kombinuje kouzlo historie s praktickými úpravami pro současné bydlení a nabízí obrovský potenciál pro toho, kdo ji dokáže správně uchopit. Co vás zde čeká: - Dům s duší a velkorysými rozměry – dvě plnohodnotná patra (každé 160 m²), sklep (30 m²) a prostorné podkroví. - Nové ústřední topení + lokální topidla v každé místnosti. - Kombinace původních dřevěných a novějších plastových oken, střecha z tašek a plechu. - Vlastní studna + septik, přípojka obecního vodovodu na hranici pozemku. Pozemky a zázemí: - Celková výměra 2 349 m², z toho 320 m² tvoří zastavěná plocha domu a dílen. - Dílny a prostory ideální pro řemeslnou výrobu, skladování nebo podnikání. - Historicky zde fungovalo řeznictví s prodejnou – možnost navázat na tradici nebo využít zcela novým způsobem. - Ideální také jako zemědělská usedlost – dostatek místa pro chov hospodářských zvířat, ustájení i skladování krmiva. Poloha a obec: - Na neutrální půdě – všude blízko: do královského města Jičín, k Prachovským skalám, i do horských areálů Pec pod Sněžkou, Špindlerův Mlýn, Trutnov a Vrchlabí. - Srdce klidné obce – pár kroků k sokolovně, kroužkům, restauraci a obchodu. - V docházkové vzdálenosti pošta, jesle, mateřská školka s prvky Montessori. - Obec plánuje výstavbu chodníků pro vyšší bezpečnost a komfort obyvatel. Příroda na dosah: - Jen 300 metrů od domu se otevírá úchvatný výhled na Krkonoše. - Okolí nabízí rybník, rozlehlé louky a lesy pro klidné procházky i aktivní odpočinek. ‘ - V sousední vesnici najdete zrenovované koupaliště, ideální pro letní dny. Pro koho je tato usedlost ideální? - Pro velkou rodinu hledající prostor a soukromí - Pro ty, kdo chtějí spojit bydlení s podnikáním - Pro hospodáře a chovatele, kteří chtějí skloubit domov s péčí o zvířata - Pro investory či kreativní duše, kteří vidí příležitost a mají odvahu ji využít naplno. Tato nemovitost čeká na člověka, který v ní uvidí víc než jen dům – místo, kde se splní jeho představy a sny. Rádi vás přivítáme, provedeme každým koutem a podělíme se o atmosféru, kterou fotky nikdy plně nezachytí. Prohlídky jsou možné i o víkendech – těšíme se na osobní setkání a věříme, že si Vás tato usedlost získá stejně jako nás. Pro komunikaci uvádějte evidenční číslo zakázky N113452.


