Prodej - dům/vila, 160 m²
Prodej Rodinný dům, 160㎡
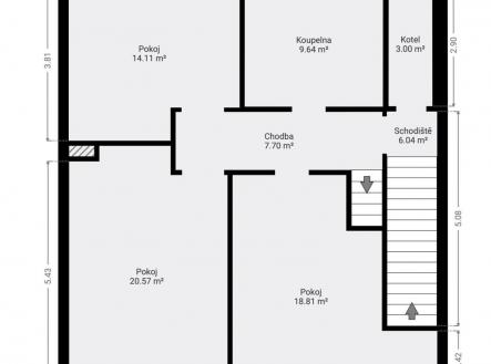
Prodej řadového RD, 5+1, 160 m2, pozemek 469 m2, Chržín, okres Kladno. Tento prostorný dům se nachází v Dolní Kamenici, v části obce Chržín. Dům je z větší části po rekonstrukci, v interiéru je několik prvků k dokončení - kuchyňská linka, podlahy, zárubně a dveře, osvětlení, apod. Dispoziční řešení je: v přízemí prostorný obývací pokoj s funkčním krbem, jídelna, kuchyň, koupelna se sprchou, samostatná toaleta, šatna, komora. Ve druhém podlaží jsou tři neprůchozí pokoje, hlavní koupelna s rohovou vanou a toaletou, technická místnost. V podkroví je k dispozici ateliér s komorou. Zahrada je rovinatá, se vzrostlými tújemi. Parkování možno přímo na pozemku. Klidná lokalita s občanskou vybaveností v blízkém městě Velvary či v okolních vesnicích. Dostupnost na dálnici D8 do 3 minut autem, do centra Prahy cca 35 minut. Financovat lze hypotékou, kterou Vám rádi zdarma zařídíme. Pro více informací volejte makléře. Pro komunikaci uvádějte evidenční číslo zakázky N102877.


