Prodej - dům/vila, 132 m²
Prodej rodinného domu 132 m, pozemek 512 m Chrustenice
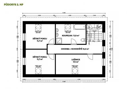
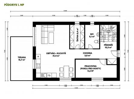
Váš nový domov uprostřed klidu a zeleně 5+kk, 132 m, zahrada 512 m, Chrustenice Představte si dům, kde se ráno probouzíte za zpěvu ptáků, snídáte venku a v soukromí a za 15 minut jste v Praze. Místo, kde si vaše děti hrají bezpečně na zahradě, zatímco vy si vychutnáváte s přáteli delikatesy z grilu na terase. Vítejte v Chrustenicích. Tento moderní dvoupodlažní rodinný dům s dispozicí 5+kk a podlahovou plochou 132 m vzniká v jedné z nejžádanějších lokalit na západním okraji Prahy v malebných Chrustenicích, v sousedství přírodního parku a zároveň jen pár minut od dálnice D5 vedoucí do Prahy či do Berouna. DŮM, KDE SE BUDE DOBŘE ŽÍT: - Dispozice 5+kk, ideální pro rodinu se 2-3 dětmi - Obývací pokoj s kuchyňským koutem a vstupem na terasu místo, kde bude žít vaše rodina i víkendová setkání s přáteli - 3 pokoje v patře, z toho hlavní ložnice s místem na šatnu - Pracovna nebo pokoj pro hosty v přízemí - Moderní koupelna + samostatné WC - Praktická šatna a technické zázemí - Dům bude předán v nadstandardním provedení s hotovými podlahami, obklady, koupelnou a WC v nadčasovém designu - 3x parkovací stání pro všechny členy rodiny TECHNICKÉ INFORMACE: - Pozemek: 512 m - čeká vás tedy nenáročná údržba zahrady - Tepelné čerpadlo s podlahovým vytápěním v celém domě úsporné, komfortní, tiché - Energetická třída B (nízkoenergetický dům) - Vrtaná studna, retenční nádrž, napojení na kanalizaci - Kolaudace plánovaná na listopad 2025 SKVĚLÁ LOKALITA, KTERÁ MÁ VŠECHNO: - Chrustenice jsou malá obec obklopená přírodou a přitom jen 15 minut od Prahy a 10 minut od Berouna Je to místo, které si zamilujete. - Přírodní park Povodí Kačáku, lom Velká Amerika, Karlštejn, Svatý Jan pod Skalou jen pár minut od domu - Dětské hřiště, sportovní areál, fotbalové i víceúčelové hřiště přímo v obci - Mateřská škola v obci, základní škola a lékař hned v sousední Loděnici (2 min autem) - Supermarkety, kavárny a nemocnice v Berouně (10 min) - Výborné dopravní spojení dálnice D5 v blízkosti (ale není slyšet), autobusy PID, vlakové spojení z Loděnice nebo Vráže - Je to ideální volba pro ty, kdo hledají klidné zázemí pro rodinu s přírodu hned za domem, ale zároveň chtějí být rychle v práci, škole nebo na schůzce v Praze či v Berouně. PROHLÍDKY: - přijďte se podívat na vlastní oči, že tato lokalita je naprosto skvělá, a že se Vám zde bude krásně žít. - Zavolejte a domluvte si prohlídku ještě dnes.


