Prodej - dům/vila, 162 m²
Prodej rodinné domy, 162 m² - Chrudim IV
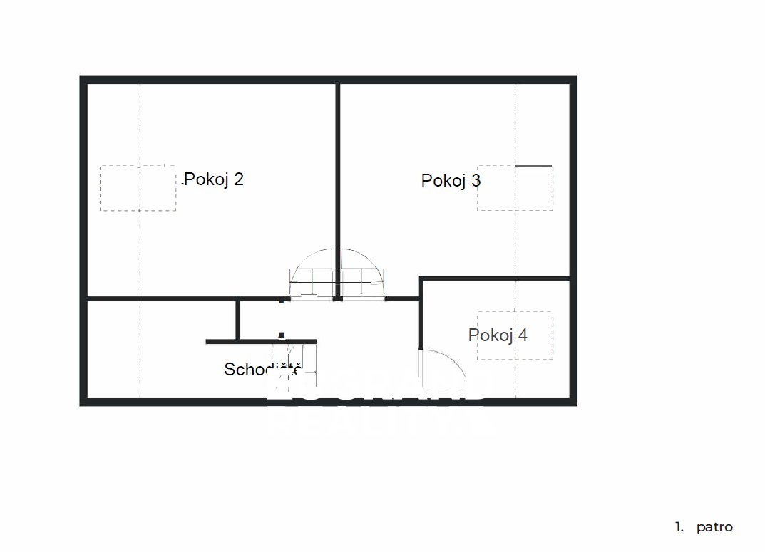
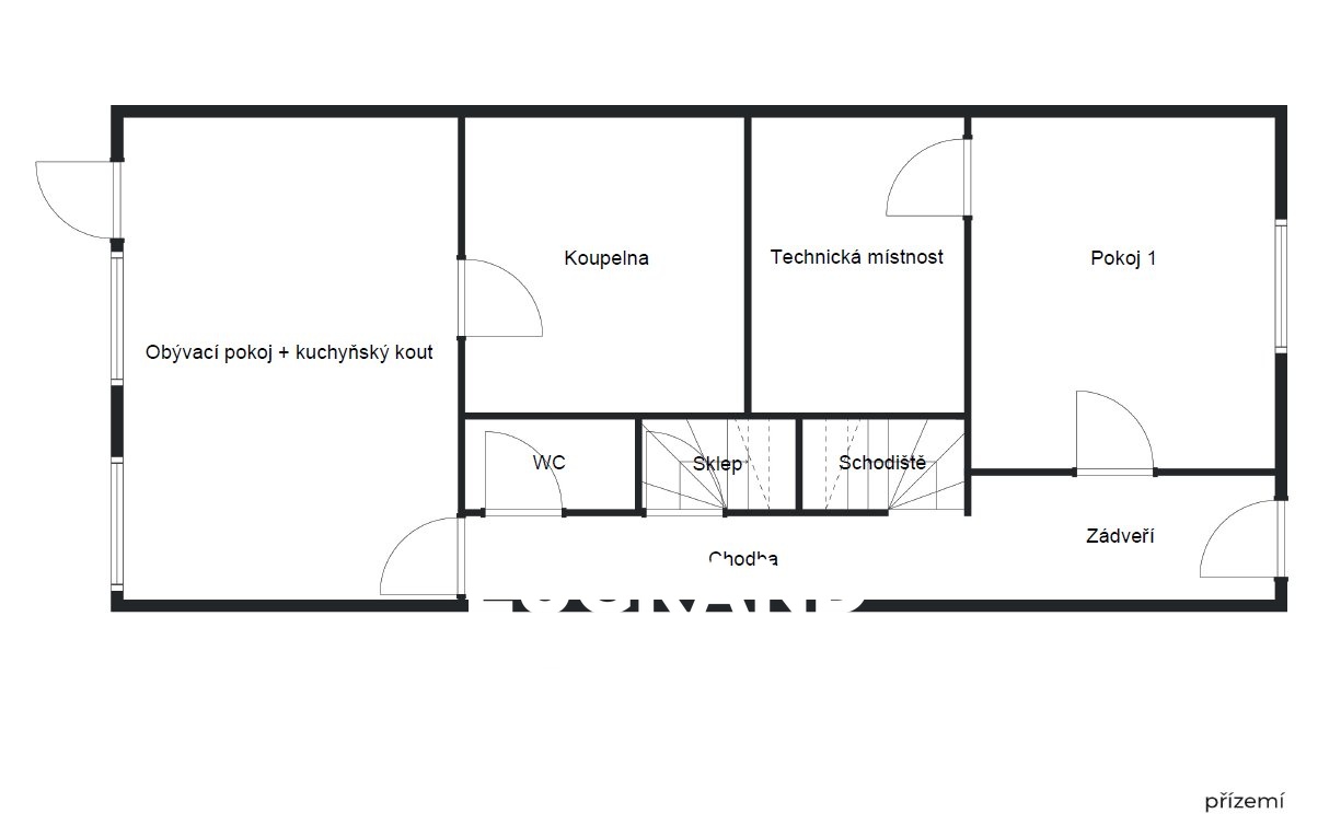
Nabízíme k prodeji prostorný a světlý rodinný dům o dispozici 6+kk, který se nachází v klidné části města Chrudim. RD je situován na východní hranici pozemku o celkové velikosti 528 m². Jedná se o částečně podsklepený, řadový dům s jedním nadzemním podlažím a obytným podkrovím. Objekt je připojen na veřejné rozvody – vodovod, kanalizace, plyn. Současně disponuje i studnou. Dům je vytápěn plynovým kotlem, který se nachází v technické místnosti (viz plánek přízemí - fotografie). Dominantní místností domu je obývací pokoj s kuchyňským koutem, z kterého vedou dveře přímo na slunnou terasu, která nabízí ideální zázemí pro grilování či posezení s přáteli. Dům je ideální volbou pro ty, kteří hledají prostor pro realizaci domova dle vlastních představ. Inzerát obsahuje i několik vizualizací, které slouží jako inspirace pro možnou proměnu prostorů. V okolí naleznete veškerou občanskou vybavenost, výborná dostupnost do centra města i nedalekých Pardubic. (20 minut jízdy autem) Nemovitost lze financovat hypotečním úvěrem, s kterým Vám rádi pomůžeme. Více informací u makléře. Budeme se těšit na osobní setkání.


