Prodej bytu, 1+kk, 30 m²
Prodej bytu 1+kk (30,3 m2) v rezidenci Podkopanický mlýn v Chrudimi, 3.np
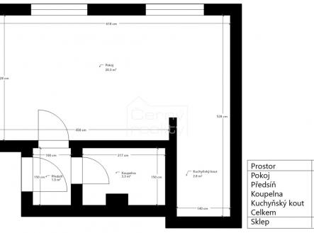
Prodej bytu 1+kk (30,3m2) v rezidenci Podkopanický mlýn v Chrudimi. Byt se nachází ve 3.podlaží. Na adrese Podkopanický mlýn 1135, Chrudim. By se nachází v novostavbě z roku 2019, v pěkném místě, kousek od centra Města. Přístup do bytu je bezbariérový. V přízemí objektu jsou krytá parkovací stání. Byt má následující dispozici : předsíň, koupelna s vanou a toaletou, obývací pokoj s dvěma velkými francouzskými dřevěnými eurookny, v šedé barvě. Kuchyňský kout s vybavenou kuchyňskou linkou. Celkové náklady spojené s bydlení jsou 2.850,-Kč, z toho fond oprav činí 227,-Kč. Byt je nyní pronajat, z důvodu prodeje bude byt uvolněn k 1.1.2026. V přízemí je k bytu sklep o ploše 1,5 m2. Prohlídky jsou možné po dohodě s makléřem. ID 113525.


