Prodej - dům/vila, 150 m²
Prodej rodinného domu 150 m2, Chroustovice
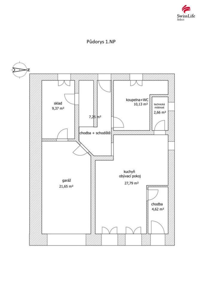
AKTUALIZACE CENY. Hledáte rodinný dům, kde se ihned cítíte jako doma? Tento prostorný dům s dispozicí 5+kk a garáží nabízí vše, co potřebujete pro pohodlný život a ještě něco navíc. Soukromý dvorek je ideálním místem pro odpočinek a grilování. A pokud sníte o vlastním bazénu, místa je tu dost. Dům se nachází v klidné části obce Holešovice u Chroustovic, odkud to máte na dosah do Chrudimi, Vysokého Mýta i Pardubic. Perfektní kombinace venkovského klidu a městské dostupnosti. Během rekonstrukce došlo k modernizaci technických instalací a rozšíření obytného prostoru do podkroví. Interiér si uchoval svůj útulný, venkovský charakter a zároveň nabízí prostor pro úpravy podle vašich představ. Vznikly zde čtyři světlé pokoje, koupelna s toaletou a praktická místnost, kterou můžete využít jako šatnu, pracovnu nebo pokoj pro hosty. Za hlavními dveřmi vás uvítá vstupní chodba, odkud projdete do vzdušného obývacího pokoje spojeného s kuchyňským koutem. Dominantou tohoto prostoru je stylový krb, který se postará nejen o příjemné teplo, ale i o jedinečnou atmosféru domova. Večer u praskajícího ohně si prostě zamilujete. V přízemí nechybí ani prostorná koupelna s vanou, toaletou a sprchovým koutem. Součástí domu je garáž a sklad s přístupem do sklepa o výměře 16 m ideální pro uložení sezónních věcí nebo sportovního vybavení. O teplo se stará plynový kotel, dům je napojen na elektřinu, veřejný vodovod a obecní kanalizaci. Celková užitná plocha je 150 m, pozemek má rozlohu 178 m. Pokud hledáte domov, kde se snoubí praktičnost, útulná atmosféra a klidná lokalita, právě jste ho našli. Neváhejte a domluvte si termín prohlídky, kde se na Vás bude těšit makléřka Kateřina Sádovská.


