Prodej - dům/vila, 105 m²
Prodej domu s historickým duchem v srdci Chotouně, okr. Kolín
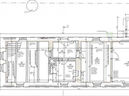
Jedinečný dům s historickým kouzlem a schváleným projektem rekonstrukce – Chotouň, okr. Kolín Představujeme dům, který v sobě spojuje autentickou historii, atmosféru venkova a obrovský potenciál pro nový začátek. Tento objekt, stojící na pozemku o velikosti 293 m² (zastavěná plocha 147 m²), je součástí bývalé zemědělské usedlosti v malebné obci Chotouň. Součástí prodeje je již schválený projekt a stavební povolení na kompletní obnovu domu – ideální příležitost pro ty, kteří chtějí tvořit bez zdlouhavého vyřizování. Stavba s tradičním obdélným půdorysem a sedlovou střechou je orientována západ–východ a zachovává si původní venkovský ráz. Ačkoliv vyžaduje rekonstrukci, nevykazuje zásadní statické poruchy, což z ní činí skvělý základ pro budoucí domov, ateliér či podnikatelský záměr. Současný interiér zahrnuje vstupní chodbu, kuchyň, tři pokoje a přístavek. Interiér zdobí kamenné zdi s obložením z nepálených cihel, které dodávají prostoru rustikální atmosféru, a dřevěné trámové stropy, jež podtrhují historický charakter domu. Kompletní projekt rekonstrukce i stavební povolení ráda zašlu vážným zájemcům. Chotouň – místo s duší a výbornou dostupností, je známá svou bohatou historií – podle legend je rodištěm sv. Prokopa. Obec si dodnes uchovává klidnou atmosféru, přátelské sousedství a krásné okolí plné přírody a památek. Dopravní dostupnost je jedním z hlavních benefitů: -Praha autem cca 25 minut -Autobusová zastávka přímo u domu – spojení do Českého Brodu a Říčan -Vlakové stanice Klučov a Poříčany – cca 8 km Občanská vybavenost v okolí: -MŠ Chrášťany (2 km) -ZŠ Bylany (4 km) -Kompletní služby v Českém Brodě – obchody, lékaři, restaurace, sportoviště, kultura - Okolí nabízí také množství výletních cílů – zámek Konopiště, zámek Jemniště, hrad Český Šternberk a další. Hledáte místo, kde můžete vytvořit rodinný domov, stylový venkovský ateliér, dílnu, kavárnu nebo komunitní prostor? Tento dům nabízí neomezené možnosti a díky schválenému projektu můžete začít téměř okamžitě. Ráda vám nemovitost osobně představím a poskytnu veškeré podklady. Neváhejte mě kontaktovat – možná právě tady začíná váš nový příběh. Uvedené výměry jsou orientační. V případě více zájemců bude nemovitost prodána nejlepší nabídce a majitel si vyhrazuje právo vybrat kupujícího na základě jim zvolených kritérií. Veškeré zveřejněné údaje obsažené v tomto inzerátu mají pouze informativní charakter a nejsou nabídkou ve smyslu §1731 nebo §1732 občanského zákoníku, ani se nejedná o veřejný příslib dle §1733 občanského zákoníku.


