Prodej - dům/vila, 105 m²
Dům s projektem pro kreativní a komerční využití v srdci Chotouně, okr. Kolín
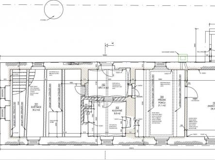
Dům s projektem pro kreativní a komerční využití v srdci Chotouně, okr. Kolín Hledáte místo pro vlastní ateliér, dílnu, kavárnu nebo komunitní centrum s bydlením pod jednou střechou? Pak právě tento dům v Chotouni může být Vaším novým projektem! Nabízíme jedinečnou nemovitost o celkové ploše 293 m2 (z toho 147 m2 zastavěná plocha) s již schváleným projektem a stavebním povolením na kompletní obnovu. Dům je součástí bývalé zemědělské usedlosti s historickým šarmem – ideální prostor pro multifunkční využití.: - Prostorem pro dílny, workshopy nebo showroom - Zázemím pro kavárnu, galerie nebo komunitní aktivity - Bydlením v horním patře s možností vytvoření krásného mezonetu Interiér nyní zahrnuje vstupní chodbu, kuchyň, tři pokoje a přístavek. Dům má tradiční kamenné zdivo s nepálenými cihlami, trámové stropy a sedlovou střechu. Konstrukce je ve stabilním stavu – ideální základ pro novou vizi bez nutnosti zásadních stavebních zásahů. Chotouň – poklidná lokalita s duší, kde minulost potkává současnost. Jen 25 minut jízdy autem do Prahy. Zastávka autobusu přímo u domu, vlaková dostupnost z Poříčan nebo Klučova. Kompletní občanská vybavenost v Českém Brodě. Pokud hledáte místo, kde spojíte podnikání s kreativou a životním stylem – jste na správné adrese. Zavolejte mi, ráda Vám tuto inspirativní nemovitost osobně představím.


