Prodej - dům/vila, 138 m²
Prodej rodinného domu, 138 m², Chrást
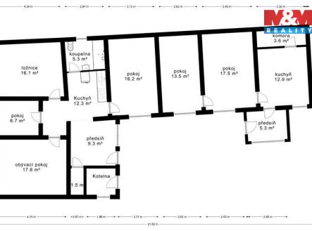
Představte si ráno, kdy otevřete okno a místo ruchu města vás přivítá klid, vůně trávy a tlumené kdákání slepic ze dvora. Na zahradě už padá listí, v kávovaru voní čerstvá káva a vy víte, že nikam nemusíte spěchat. V srdci obce Chrást u Poříčan na vás čeká rodinný dům s užitnou plochou 85 m² + 53 m², dvěma oddělenými obytnými částmi pod jedním číslem popisným - ideální pro vícegenerační bydlení, hosty nebo propojení domova s prací. Dům má novou střechu, plastová okna, je napojen na elektřinu, kanalizaci i internet. Na pozemku najdete studnu, stodolu, dílnu, skleník, garáž i zákoutí pro odpočinek. Autobus staví přímo před domem a obec žije – slavnosti, sousedé, pohoda. Místo, kde se žije jinak. Pomaleji. Opravdově.


