Prodej - chata/rekreační objekt, 138 m²
Prodej chalupy, 138 m², Chrást
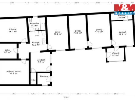
Představte si letní ráno, kdy otevřete okno a do tváře vás pohladí čerstvý vánek vonící po seně. V dálce zpívají ptáci, na zahradě se třpytí rosa a vy víte, že vás čeká den bez spěchu – jen vy, příroda a klid. V obci Chrást u Poříčan na vás čeká kouzelná chalupa s užitnou plochou 85 m² + 53 m², dvěma samostatnými obytnými částmi pod jedním číslem popisným. Je ideální pro rodinné víkendy, ubytování hostů nebo spojení odpočinku s prací na dálku. Chalupa má novou střechu, plastová okna a je napojena na elektřinu, kanalizaci i internet. Na pozemku najdete studnu, stodolu, dílnu, skleník, garáž i tichá zákoutí pro posezení u kávy. Autobus staví přímo před domem a vesnice žije – slavnosti, sousedé, pohoda. Místo, kde se žije pomaleji. V souladu s přírodou. Opravdově.


