Prodej - dům/vila, 260 m²
Prodej - dům/vila, 260 m2
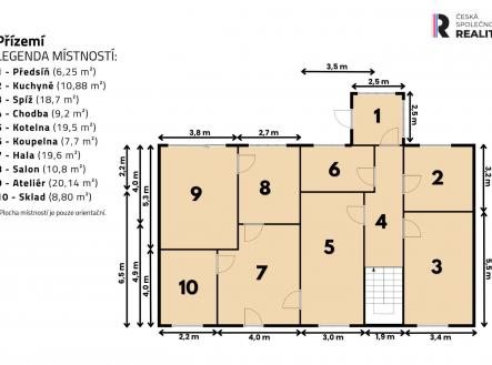
Exkluzivní rodinné sídlo s autentickou atmosférou v srdci Posázaví Tento bývalý statek v obci Vestec u Chocerad představuje výjimečnou příležitost vytvořit si soukromé rodinné sídlo v jedné z nejmalebnějších částí Posázaví, pouhých cca 40 minut od Prahy. Klid, venkova, přátelští sousedé, ovce v sousedství a potůček protékající pozemkem s 1.365 m² dotváří jedinečný charakter místa a harmonii, kterou moderní developerské projekty nedokážou nahradit. Prostor, který dává svobodu Celková užitná plocha domu přibližně 260 m² nabízí mimořádnou variabilitu využití: Přízemí (cca 130 m²) tvoří technické zázemí (sklep, kotelna, prádelna, sklady) a možnost vybudování samostatné bytové jednotky nebo atelieru či kanceláře 1. patro (cca 130 m²) s dispozicí 5+1 se 3 komorami je ideální na bydlení pro rodinu s dětmi Samostatná stodola se 100 m2 pak přirozeně rozšiřuje možnosti – od parkování přes dílnu až po výdělečné aktivum. Usedlost, jejíž kořeny sahají do roku 1900, prošla postupnou modernizací, která respektuje tradiční venkovský charakter, ale zároveň splňuje požadavky na současné standardy bydlení. Zásadním faktorem zhodnocení je mimořádná flexibilita objektu. Kombinace velkorysé obytné plochy, hospodářské budovy a technického zázemí integrovaného přímo v domě umožňuje okamžitou adaptaci na specifické potřeby majitele. Tato variabilita, podpořená rozlehlým pozemkem, definuje nemovitost jako stabilní aktivum s vysokou likviditou v segmentu prémiových venkovských rezidencí. Technický základ pro moderní komfort - krásná eurookna s dvojskly - sedlová střecha s betonovými taškami - moderní kotel ATMOS (z roku 2020) – pelety/dřevo – komín je vyvložkovaný - bojler Dražice pro ohřev vody - vodní čerpadlo - odpad je řešen septikem - kanalizace je na hranici pozemku - konstrukčně stabilní objekt s historií postupných úprav Lokalita a občanská vybavenost (Chocerady & Vestec) Obec Chocerady je významným spádovým centrem s bohatou historií. Vlakové spojení do Čerčan a následně do Prahy na Hlavní nádraží a blízkost dálnice D1 rychlého spojení na metro Chodov do 25 minut, což zaručuje bezproblémové dojíždění do metropole. Vzdělávání: Mateřská a základní škola (1.–9. třída), Rodinné centrum Sluníčko. Zdravotní péče: Praktický a zubní lékař; unikátní Dětské centrum Chocerady poskytující vysoce specializovanou péči a podporu rodinám se zdravotně postiženými dětmi (významný prvek sociální infrastruktury regionu). Kultura a historie: Historická zvonička z roku 1888 na návsi (zrenovovaná 2009), obecní knihovna, seniorský klub, aktivní spolky (Sokol, SDH, myslivci). Obchod a služby: Pošta Partner, prodejny potravin, sportovní areál. Co na závěr můžeme říci: „Tato nemovitost není pro každého – ale pro toho správného nabízí něco, co se dnes kupuje jen velmi těžko: prostor, klid a skutečný charakter.“


