Prodej bytu, 4+1, 146 m²
Prodej bytu 4+1 v osobním vlastnictví 130 m², Chlumec nad Cidlinou
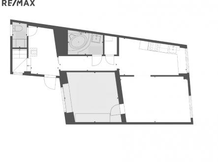
Nabízíme k prodeji velkorysý byt o dispozici 4+1 s celkovou podlahovou plochou 129,7 m², ke kterému navíc náleží dílna o velikosti 16,7 m² a výlučné užívání druhé dílny (14,7 m²). Součástí je také společná zahrada o rozloze 377 m², ideální pro relaxaci, posezení či dětské hry. Byt se nachází v domě o třech bytových jednotkách, v klidné lokalitě s možností pohodlného parkování přímo na pozemku. Jednotka prošla menší rekonstrukcí, je v plně obyvatelném stavu a připravena k okamžitému nastěhování, přesto nabízí i velký potenciál k modernizaci – můžete si ji upravit přesně podle svých představ. Dispozice bytu 1. podlaží: vstupní chodba se schodištěm kuchyně s linkou obývací pokoj se vstupem do ložnice s výhledem do vnitrobloku koupelna s vanou a umyvadlem samostatná toaleta komora 2. podlaží: chodba s koupelnou a toaletou průchozí pokoj dětský pokoj Dům a lokalita Byt se nachází v klidné části obce, která nabízí kompletní občanskou vybavenost v docházkové vzdálenosti – supermarkety, škola, školka, dětská hřiště i zdravotní služby. Díky autobusovému i vlakovému spojení se snadno dostanete do okolních měst, přičemž zastávky jsou jen pár minut chůze. Milovníci přírody ocení zelené okolí, které nabízí ideální podmínky pro procházky, sportovní aktivity i odpočinek. Tento byt je vhodný nejen pro rodinné bydlení, ale také jako zajímavá investiční příležitost – ať už pro pronájem, nebo další zhodnocení po rekonstrukci.

