Prodej - dům/vila, 362 m²
Prodej Rodinný dům, 362㎡
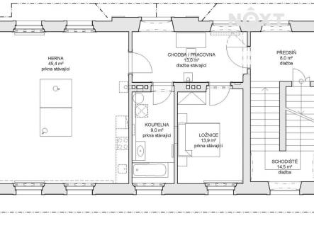
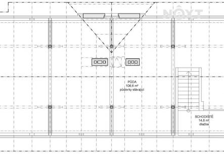
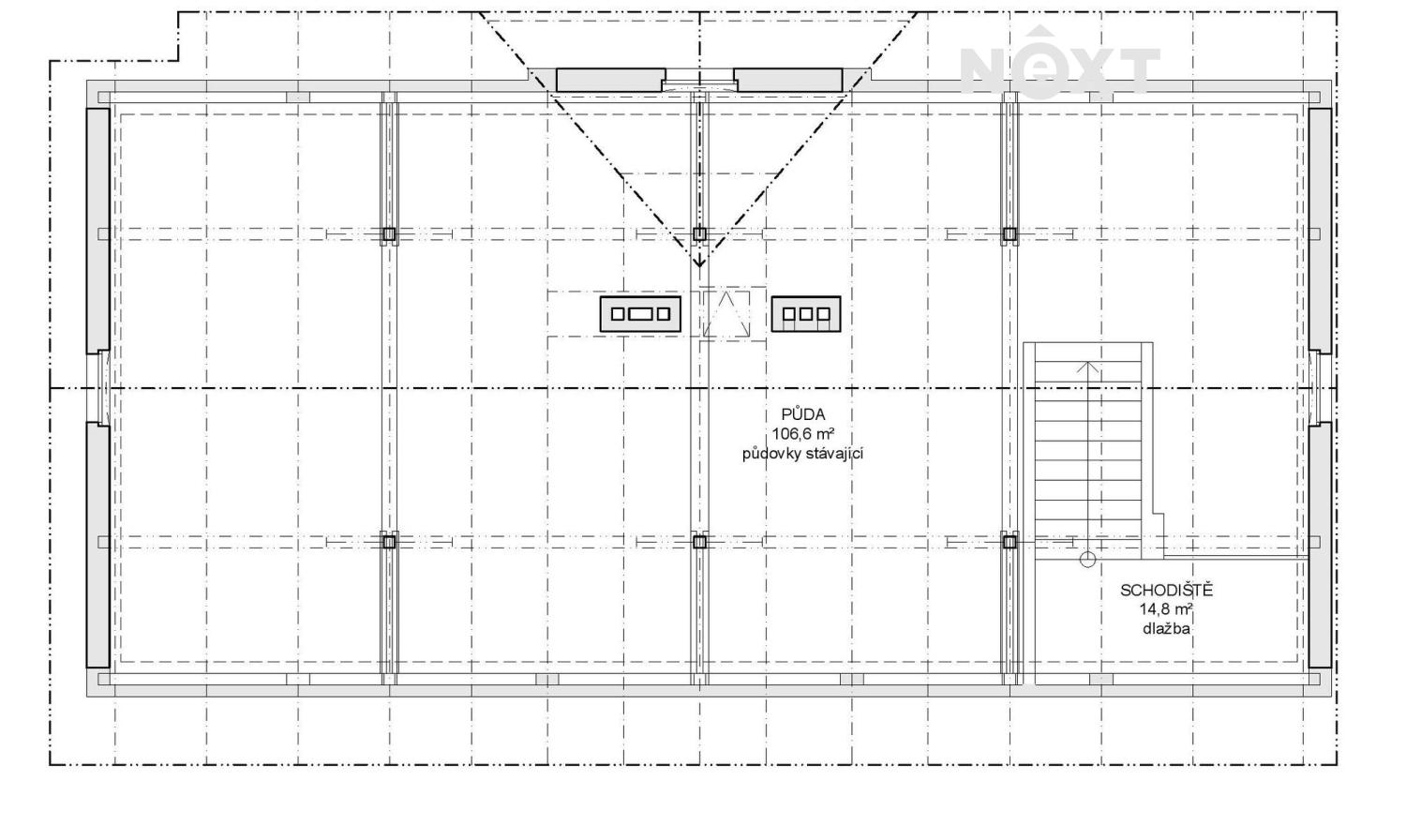
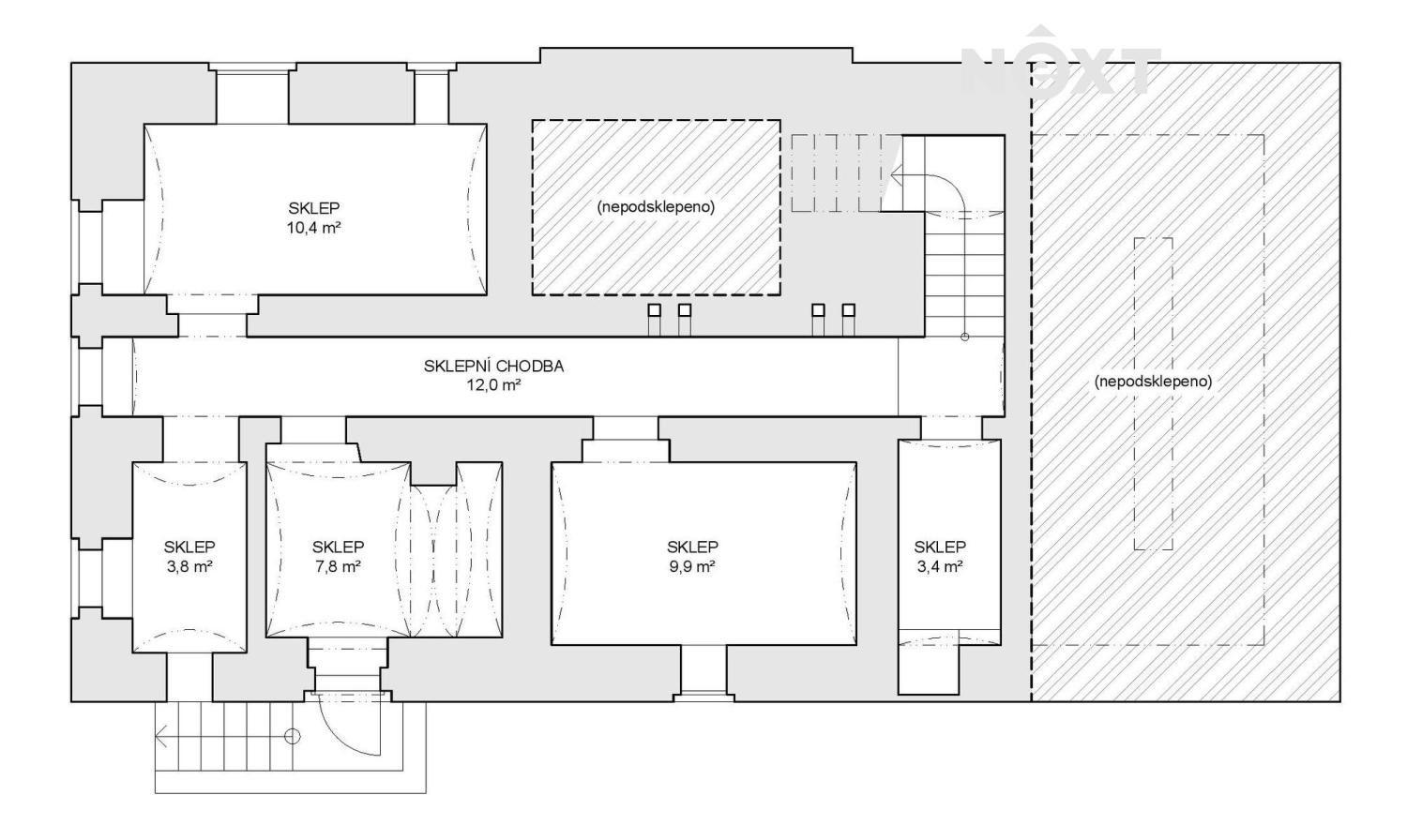
Prodej jedinečné nemovitosti se zahradou na hranici Máchova kraje a Kokořínska v klidné obci Drchlava. Budova staré školy z roku 1903 má svého ducha. Nyní je ve stavu po citlivé rekonstrukci interiéru a instalací, realizované architektem. V přízemí domu se nachází byt s dispozicí 3+1, v prvním patře pak po instalaci kuchyňské linky vznikne plnohodnotná jednotka 2+kk s pracovnou. Své kouzlo mají restaurované původní prvky v propojení s moderním funkčním designem, výhodou jsou samostatné vstupy do obou bytů – zejména při případném pronájmu jak pro turisty, tak k trvalému bydlení. Vytápění v obou jednotkách je řešeno krbovými kamny s výměníkem, napojenými na okruh ústředního topení, přitápět lze však i elektřinou. Vodu ohřívají bojlery. Nemovitost je skoro celá podsklepena. Posledním podlažím je půda. Na půdu je přivedena elektřina, voda a odpad. Pozornost vyžaduje jeden z trámů. Střešní krytinu tvoří bobrovky. Opravou krytiny bylo zabráněno zatékání, výhledově je ovšem třeba počítat s její kompletní rekonstrukcí. Ze sítí je k dispozici elektřina a veřejný vodovod, odpady jsou svedeny do jímky. Bezproblémový přístup z obecní asfaltové komunikace. Veškerá občanská vybavenost se nachází v nedaleké Dubé. Jednoznačná pozitiva – klidné prostředí malebné obce s krásnou okolní přírodou a dobrou dostupností do Prahy autem i hromadnou dopravou. Další informace v RK. Třída energetické náročnosti – G. Využijte možnost moderního financování až na 30 let bez ohledu na věk a prokazování příjmů, či nutnosti předkládat daňové přiznání (u podnikatelů). Zeptejte se u nás a bydlete chytře. Pro komunikaci uvádějte evidenční číslo zakázky N116160.


