Prodej - dům/vila, 70 m²
Rodinný dům 1+kk, UP 70 m2, CP 181 m2, obec Cetkovice
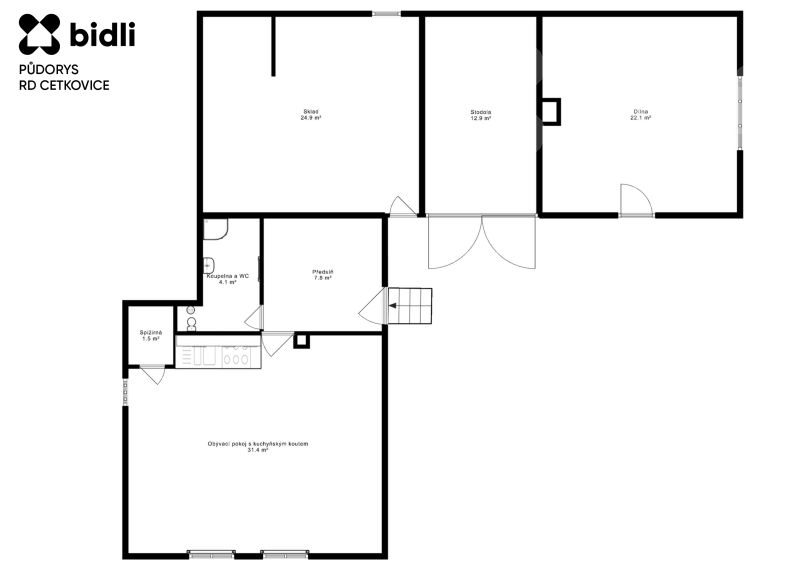
Upozornění: Tato nabídka je rezervována konkrétním zájemcem a v rezervační lhůtě není k dispozici! Nabízíme k prodeji přízemní rodinný dům o dispozici 1+kk se stodolou v klidné části obce Cetkovice, okres Blansko. Dům má užitnou plochu přibližně 70 m², zastavěnou plochu 83 m² a celková plocha pozemku činí 281 m². Součástí nemovitosti je také prostorná stodola o velikosti 61 m², která nabízí široké možnosti využití jako dílna, garáž, sklad nebo pro přestavbu na další obytný prostor. Nemovitost je napojena na elektřinu, obecní vodovod, je určena spíše k rekonstrukci a umožňuje realizovat vlastní představy o bydlení. Cetkovice jsou malebnou obcí s historií sahající až do 11. století, obklopenou krásnou přírodou Malé Hané a nedaleko Moravského krasu. V obci je základní občanská vybavenost včetně mateřské a základní školy, obchodu, restaurace, pošty a nedávno zrekonstruovaného kulturního domu. Díky dobrému autobusovému spojení jsou Cetkovice ideálním místem jak pro klidné trvalé bydlení, tak i pro rekreaci. Nemovitost je okamžitě k dispozici. V případě zájmu o prohlídku nás neváhejte kontaktovat - rádi Vám pomůžeme s realizací Vašich plánů.


