Prodej bytu, 3+1, 98 m²
Byt 3+1 98 m², pozemek 416 m², Dolní Žukov, Český Těšín
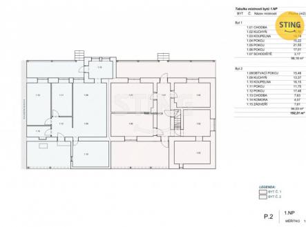
Prostorný byt 3+1 s parametry rodinného domu, dva vstupy, dvě terasy, garáž a parkování – Český Těšín, Dolní Žukov. Nabízíme k prodeji nadstandardně prostorný byt o dispozici 3+1 a užitné ploše 98 m², umístěný v rodinném domě, ve kterém se nacházejí pouze dvě bytové jednotky. Nemovitost je situována v klidné a vyhledávané části Dolní Žukov. Byt disponuje dvěma samostatnými vchody, což zajišťuje maximální pohodlí a flexibilitu využití. K jednotce náleží dvě terasy, ideální pro relax i posezení s rodinou, dále garáž a parkovací stání, které výrazně zvyšují komfort každodenního bydlení. Součástí nabídky je pozemek o výměře 416 m² určený k užívání k tomuto bytu a zároveň společný podíl na pozemku o celkové výměře 866 m². Dispozice 3+1 je řešena velmi prakticky a nabízí prostornou vstupní chodbu, tři samostatné neprůchozí pokoje, samostatnou kuchyni a velmi prostornou koupelnu, která poskytuje nadstandardní pohodlí. Rodinný dům i bytová jednotka prošly kompletní rekonstrukcí, díky které je nemovitost připravena k okamžitému užívání bez nutnosti dalších investic. Byt má samostatné měření energií. Tato nemovitost je ideální volbou pro ty, kteří hledají byt s parametry rodinného domu, dostatek prostoru, vlastní venkovní zázemí, soukromí a parkování, a zároveň chtějí zůstat v dosahu města a veškeré občanské vybavenosti. Pro více informací nebo domluvení prohlídky mě neváhejte kontaktovat.


