Prodej - dům/vila, 104 m²
Prodej rodinného domu se zahradou a garáží, blízko nádraží...
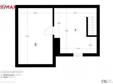
Nabízíme k prodeji částečně podsklepený rodinný dům se zahradou v rezidenční klidné části města. Dům o stávající dispozici prostorného zádveří se schodištěm do prvního patra, obývacího pokoje s kuchyňskou linkou, tří ložnic, koupelny a WC. Na pozemku je menší samostatná garáž a ze strany domu zastřešené venkovní sezení s místností na zahradní nářadí. Dům je v původním dobrém udržovaném stavu. Proběhla výměna oken za nová, plastová. Nemovitost je napojena na veškeré inženýrské sítě, jako jsou voda, kanalizace, elektřina, plyn. Vlaková stanice Český Brod, je pěšky sedm minut od domu a do Prahy Libně vlakem, za pouhých za 29 minut. Cesta autem do Prahy OC Černý Most, za 24 minut (28 km). Český Brod, disponuje veškerou občanskou vybaveností a nabízí mnohé kulturní vyžití. Český Brod je město s bohatou historií, které slouží i jako výchozí bod k návštěvám zajímavého okolí – lipanské bojiště, přírodní lokalita Dolánky, blízký Kostelec nad Černými Lesy, chráněná krajinná oblast vrch Klepec, tismická bazilika, tuchorazská tvrz... Prodávající si vyhrazuje právo vybrat kupujícího na základě jím zvolených kritérií.


