Prodej - pozemek pro bydlení, 839 m²
Stavební parcela o velikosti 839 m²
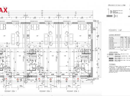
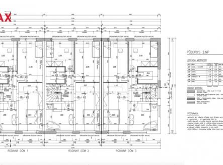
K prodeji nabízíme stavební parcelu o velikosti 839 m² v katastrálním území České Budějovice 6 - městská část Mladé, ulice Platanová. Stavební parcela je kompletně zasíťovaná (vodovod, kanalizace, plynovod, elektřina, CETIN). Jedná se o rovinatý pozemek s vynikajícím přístupem. Stavební pozemek je rozdělen na 3 samostatné parcely tak, aby každý majitel budoucího řadového RD disponoval vlastním pozemkem. Aktuálně probíhá stavební řízení na výstavbu 3 řadových rodinných domů. Dispozice těchto domů je 4+kk ve dvou podlažích s pultovou střechou. Každý dům má vlastní garáž. Užitná plocha RD 2 a 3 (vnější): 133,92 m2 1.NP: 49,69 m2 + garáž 16,47 m2 2.NP: 67,76 m2 Užitná plocha RD 1 (prostřední): 132,46 m2 1.NP: 48,39 m2 + garáž 16,47 m2 2.NP: 66,6 m2 Součástí prodeje je stavební povolení a projektová dokumentace na výstavbu 3 řadových RD. Stavební povolení očekáváme na jaře 2026. Výstavba 3 řadových RD však není podmínkou. Dle územního plánu lze postavit rodinný dům, dvojdům i malý bytový dům. ÚPI k dispozici. Městská čtvrť Mladé se nachází v jihovýchodní části Českých Budějovic a od centra je vzdálena zhruba 5 minut jízdy autem. Jedná se o oblíbenou oblast pro bydlení mezi mladými rodinami, neboť nabízí klidnou atmosféru a zároveň snadný přístup k centru města. Lokalita poskytuje perfektní občanskou vybavenost a v docházkové vzdálenosti od parcely naleznete vše, co k pohodlnému životu potřebujete. - Základní a mateřská škola: 10 minut chůze (619 metrů) - Wellness centrum Osiková: 5 minut chůze - SKI servis a půjčovna lyží: 2 minuty chůze - PENNY Market: 2 minuty autem (518 metrů) - Autobusová zastávka: 5 minut chůze - Tenisové kurty/fotbalové hřiště: 5 minut chůze - Nemocnice: 6 minut autem - Vlakové a autobusové nádraží: 15 minut autobusem/ 5 minut autem - Nájezd na zanádražní spojku 2 min autem - Dálnice D3 (dokončení 2024) 4 min autem Městská čtvrť Mladé je klidná a přátelská lokalita vhodná pro rodiny i jednotlivce, kteří hledají pohodlné a příjemné bydlení v Českých Budějovicích.


