Pronájem - kanceláře, 134 m²
Pronájem atraktivních kancelářských prostor, 134 m2 + 2x parkování, Pražská tř., Č. Budějovice 3
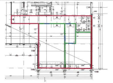
Jedná se o pronájem atraktivních administrativních prostor, o podlahové ploše 134 m2, plocha sestává ze dvou prostorných, samostatných, klimatizovaných, administrativních místností, chodba, samostatná WC (dámy + pánové) a kuchyňský koutek, + 2 x vymezené venkovní parkovací stání, prostory se nachází v přízemí nové administrativně obchodní budovy, v atraktivní a dobře dopravně dostupné části města, na Pražské tř., Č. Budějovice 3. V případě potřeby možný rovněž pronájem skladových prostor, až 115m2 v nevytápěné hale v sousedství hlavní budovy. Napojeno na PCO - střeženo. Ve foto půdorys podlaží, kde červeně ohraničen je obrys pronajímané plochy. Současné obsazení dalších prostor budovy: obchod, zdravotní služby, rehabilitace, technické revize. Cena nájmu je 26.740Kč bez DPH / měsíc + 3.000Kč zálohy (teplo, voda. elektřina, klimatizace, úklid společných prostor, popelnice, ostraha) Rezervační záloha (Provize RK): 30 000Kč vč. DPH. Veškeré info. u makléře zakázky.


