Prodej bytu, 3+kk, 73 m²
Prodej pěkného světlého bytu 3+kk, 66 m2, s terasou (7 m2) a parkovacím stáním, Rudolfovská tř. Česk
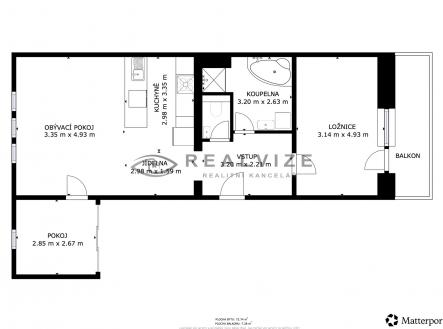
Nabízíme k prodeji velmi pěkný světlý byt 3+kk (cca 66 m2) s terasou (cca 7 m2) orientovanou do vnitrobloku s krásným výhledem na Černou věž a s parkovacím stáním v uzavřeném dvoře. Byt se nachází ve 4. patře (5) zděného bytového domu bez výtahu. Stáří bytu je cca 15 let a je ve velmi pěkném udržovaném stavu. Nabízí se s vybavením, které je vidět na fotkách, ale po dohodě s budoucím kupujícím je možné byt vyklidit. V ložnici je vestavěná prostorná skříň. Střešní okna do ulice jsou dřevěná zn. Velux, v pokoji s terasou jsou okna plastová. Koupelna disponuje rohovou vanou a sprchovým koutem, WC je samostatné. Byt je vytápěn pomocí radiátorů přes centrální plynový kotel pro celý dům, který zajišťuje rovněž ohřev vody. V koupelně je navíc podlahové topení (elektrický rošt) s vlastním ovladačem. Do budoucna se řeší možnost napojení na teplárnu. K dispozici je společný sklep a kolárna. Součástí kupní ceny je podíl na pozemku v uzavřeném dvoře, kde se nachází parkovací stání k bytu, což je v této lokalitě obrovskou výhodou. Na náměstí Přemysla Otakara II. dojdete pohodlně za 5 minut. Byt je volný ihned. V případě zájmu vám zajistíme výhodné financování. Pro více informací a termín prohlídky volejte makléřce.

