Pronájem bytu, 4+kk, 109 m²
Podnájem nadstandardního nového bytu 4+kk se zahradou a parkovacími místy
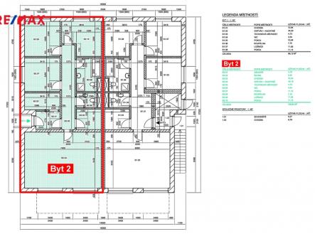
Nabízím k podnájmu nadstandardní nový byt 4+kk (109 m2) se zahradou (335 m2) a dvěma parkovacími místy. Bytová jednotka se nachází v 1.NP novostavby Viladomu Leona, v ulici U Bašty 2927, ve výjimečné lokalitě, kde jste jen několik stovek metrů od obchodní zóny Globus a přitom v naprostém klidu s výhledem na Vrbenské rybníky. Byt má samostatný vstup. Ve výhradním užívaní nájemce je velká zahrada obklopující dům. Do výhradního užívání patří i 2 parkovací místa na parkovací ploše před domem. Dispozičně je byt řešen jako 4+kk, kde najdete částečně vybavený obývací pokoj s kvalitní, kompletně vybavenou, kuchyňskou linkou a vstupem na prostornou terasu, tři samostatné pokoje, prostornou komoru, technickou místnost s přípojkou na pračku, koupelnu s WC, vanou i sprchovým koutem a druhé samostatné WC. Půdorys a výměry místností najdete ve fotogalerii. V celé jednotce jsou na podlaze kvalitní dlažby a lepený vinyl, bezfalcové vnitřní dveře Sapeli a LED osvětlení. Okna plastová s trojsklem. Ohřev teplé vody je zajištěn elektrickým bojlerem umístěným v technické místnosti. O tepelnou pohodu v chladných dnech se starají elektrické podlahové topné folie s možností přesné regulace termostaty umístěnými v každé místnosti. V teplých letních dnech oceníte venkovní elektricky ovládané předokenní žaluzie na všech oknech. O příjemné klima po celý rok se postará rekuperace vzduchu. Bonusem této jednotky je její připojení na samostatnou malou fotovoltaickou elektrárnu (4,1 kWp) instalovanou na střeše objektu, která pomůže budoucímu nájemci výrazně snížit účet za elektřinu. Pouze pro nekuřáky bez domácích mazlíčků. Podnájemní smlouva minimálně na 1 rok. Nájemné 34 000 Kč + záloha na energie 5 000 Kč, vratná kauce 50 000 Kč. Provize RK 1x měsíční nájem. Pro další informace nebo termín prohlídky kontaktujte makléře.


