Prodej bytu, 3+1, 88 m²
Nabízíme ke koupi družstevní byt v ulici N. Frýda v Českých Budějovicích
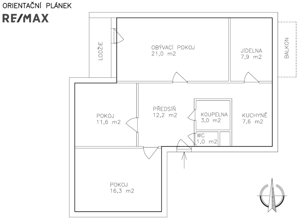
Exkluzivně nabízíme ke koupi byt 3 +1 s jídelnou v družstevním vlastnictví v Českých Budějovicích. Slunný byt je umístěn v panelovém domě v ulici N. Frýda s orientací pokojů na V a Z. Byt v družstevním vlastnictví bez možnosti odkupu, bez možnosti financování hypotečním úvěrem, o celkové ploše 78,95 m2 se nachází v 3. nadzemním podlaží z 9. Byt je po rekonstrukci omítek, částečně podlah, vodovodních instalací a elektřiny. Bytové jádro je nové z ytongu, koupelna je zvětšena, takže se do ní pohodlně vejde rohová vana, umyvadlo a pračka. Dům je po celkové rekonstrukci fasády, zateplený, okna plastová, nová dlažba na schodech a ve společných prostorách. Dispozice bytu: kuchyně s přístupem do jídelny - samostatná místnost se vstupem na balkon (dříve využívána jako dětský pokoj), obývací pokoj se vstupem na lodžii, dětský pokoj a ložnice, samostatná toaleta. Na podlaze plovoucí podlaha, dlažba, koberce nebo PVC. Jedná se o slunný byt vzhledem k blízkosti školy a dispozici vhodný pro rodinu s dětmi. K bytu náleží 2 sklepy - jeden na patře a jeden v přízemí domu.


