Prodej bytu, 3+1, 65 m²
Kompletně zrekonstruovaný a vybavený byt 3+1 s balkónem, Budivojova, České Budějovice
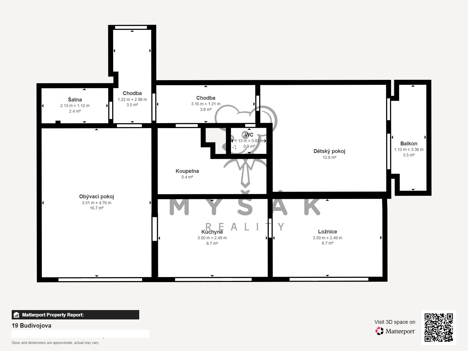
Nabízím vám ke koupi precizně zrekonstruovaný byt 3+1 s balkónem, v osobním vlastnictví, o celkové výměře 68 m2, který se nachází ve 12. patře kompletně revitalizovaného třináctipatrového panelového domu v žádané lokalitě Pražského předměstí, v Budivojově ulici. Byt prošel, před třemi lety, kompletní a velmi kvalitní rekonstrukcí, a to včetně jeho vybavení nábytkem na míru, který v bytě zůstává. Vše bylo řešeno s důrazem na detail a funkčnost. Díky tomu, že je situovaný do dvanáctého patra, je byt velmi světlý a nabízí nádherné výhledy. K bytové jednotce náleží také sklepní kóje, umístěna v přízemí domu. Mezi přiloženými fotografiemi najdete i plánek bytu a evidenční list, ze kterého jsou vidět náklady na provoz bytové jednotky při užívání třemi osobami. Budivojova ulice je klidná, a přesto výborně dostupná do centra města, zároveň se nachází v blízkosti cyklostezky a nově vzniklé relaxační zóny Sluneční ostrov. V blízkosti se dále nachází veškerá občanská vybavenost, obchody (IGY centrum), školy (Kubatova, Nerudova), školky, MHD zdravotní středisko atd. Byt bude volný dle dohody. Pro více informací a případné prohlídky, prosím, volejte.


