Prodej bytu, 2+1, 62 m²
Byt 2+1 v centru Českých Budějovic
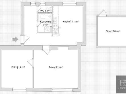
Nabízíme k prodeji světlý byt o dispozici 2+1 v osobním vlastnictví, umístěný v 1. patře domu v ulici Čéčova na Pražském sídlišti, jen pár minut od centra Českých Budějovic. Klidná lokalita s výbornou dostupností do centra i k veškeré občanské vybavenosti dělá z bytu příjemné místo k životu i investici. Užitná plocha bytu činí 62 m² a dispozice je následující: Po vstupu do bytu vás přivítá prostorná předsíň, ze které je vstup do koupelny s vanou a pračkou a také na samostatné WC. Dále se z předsíně vstupuje do obývacího pokoje, na který navazuje další pokoj. Samostatná kuchyň je vybavena plynovým sporákem, lednicí a jídelním koutem. V obývacím pokoji je položen koberec, v ostatních místnostech linoleum. Byt prošel rekonstrukcí – jsou zde nové rozvody elektřiny a vody. Velkým benefitem je možnost úpravy dispozice na 3+kk. K bytu náleží také prostorný sklep o velikosti 10 m², ideální pro uskladnění sportovního vybavení, sezónních věcí či dalších osobních předmětů. Byt je vhodný jak pro vlastní bydlení, tak jako investiční příležitost k pronájmu. Parkování lze vyřídit v rámci rezidenčních parkovacích zón za 400 Kč/rok. Zálohy na plyn činí 750 Kč/měsíc. Byt je ihned k dispozici. Lokalita nabízí kompletní občanskou vybavenost – v blízkosti se nacházejí nákupní centra, školy, lékaři, zastávky MHD i sportoviště. Do centra města se dostanete během několika minut. Nedaleké napojení na dálnici zajišťuje výbornou dopravní dostupnost i mimo město. V případě zájmu o bližší informace či prohlídku nás neváhejte kontaktovat.


