Pronájem - obchodní prostor, 58 m²
Pronájem obchod a služby, 58 m², Česká Třebová, ul. Hýblova
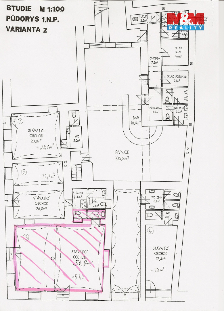
Nabízíme k pronájmu atraktivní obchodní prostor v centru České Třebové, ideální pro vaše podnikání! Tento rohový prostor se nachází v přízemí cihlové budovy a nabízí užitnou plochu 58 m². Díky vchodu ze dvou stran zajišťuje výbornou dostupnost a viditelnost pro vaše zákazníky. Umístění u Starého náměstí v centru města přináší vysokou frekvenci potenciálních klientů. Stav nemovitosti je dobrý. Volné od 1.4.2026. Využijte jedinečnou příležitost pro rozvoj vašeho podnikání na prestižní adrese! Pro více informací nás neváhejte kontaktovat.


