Prodej bytu, 3+1, 176 m²
Byt 3+1 90m2, se zahradou a garáží
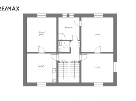
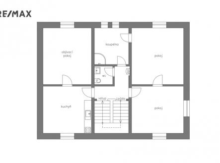
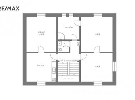
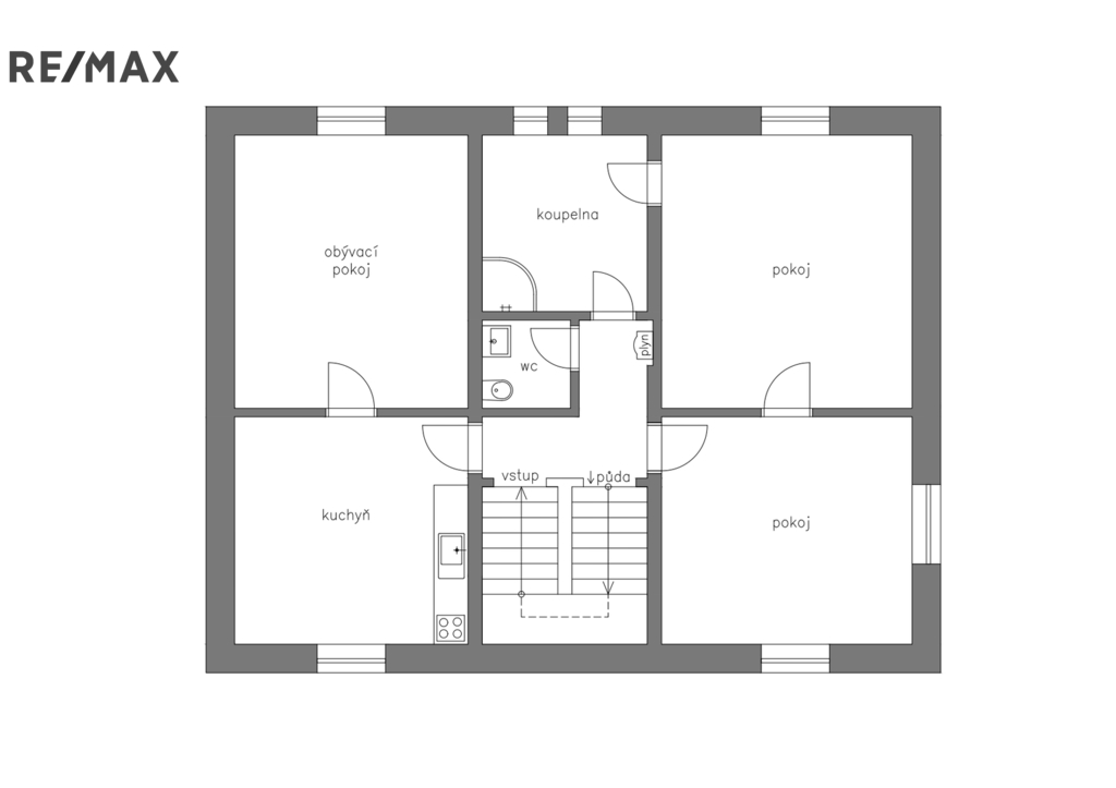
Nabízíme k prodeji jedinečný byt o dispozici 3+1 a podlahové ploše 90 m², který se nachází ve druhém nadzemním podlaží stylové vily, situované v atraktivní a vyhledávané lokalitě na Kopečku. Tato nemovitost kombinuje klidné bydlení s maximálním soukromím – byt má zcela samostatný vstup i vlastní soukromé schodiště, které zajišťuje komfort srovnatelný s rodinným domem. Dům je již na katastru rozdělen na samostatné bytové jednotky. Byt je v udržovaném stavu, nově vymalovaný a vybavený plastovými okny. Je kompletně vyklizen, včetně odstranění starých koberců, a je tak připraven jak k okamžitému zabydlení, tak k případné rekonstrukci podle představ nového majitele. Součástí vybavení je kuchyňská linka včetně sporáku.K dispozici je sprchový kout, samostatné WC v bytě a další WC v rámci soukromého schodiště. Dispozice nabízí dostatek prostoru i pro rodinné bydlení. Sklep o výměře 56 m² je rozdělen do několika místností, což umožňuje jeho využití jak pro pohodlné uskladnění věcí, tak i pro vybudování dílny či jiného praktického zázemí. Velkou přidanou hodnotou je celý půdní prostor patřící k bytu. Díky přístupu po schodech je možné po rekonstrukci podkroví výrazně zvětšit obytnou plochu a vytvořit další pokoje. K bytu náleží oddělená, oplocená část zahrady, která poskytuje absolutní soukromí pro relaxaci, posezení či pěstování. Na pozemku je dále samostatná garáž pro jedno vozidlo. Ve vile se nacházejí pouze dvě bytové jednotky a panují zde velmi dobré sousedské vztahy. Druhý spolumajitel je ochotný spolupracovat na údržbě domu, například na budoucí realizaci nové fasády. Díky zcela samostatným vstupům, které jsou umístěny na opačných stranách domu, však není nutné se s druhým sousedem vůbec potkávat, pokud si to nový majitel nebude přát. Hlavní přednosti nemovitosti - 3+1, 90 m² ve vile - samostatný vstup a soukromé schodiště - sklep 56 m² - vlastní oplocená zahrada - garáž na pozemku - celý půdní prostor náležející k bytu – možnost rozšíření obytné plochy - nová plastová okna, nová výmalba - dům je na katastru již rozdělen na bytové jednotky - výborné sousedské vztahy Tato nemovitost je ideální pro ty, kteří hledají bydlení v klidné lokalitě nedaleko centra, se skvělou dostupností do města, a chtějí užívat komfort bytu, ale zároveň získat životní styl srovnatelný s rodinným domem – a to vše za cenu běžných bytů.


